物件搜尋:


東京23区 江戸川区(江戸川区東小岩3丁目戸建)

專家的建議


<リフォーム完了済み>
2026年1月:全室クロス貼替・全室床貼替・浴室交換・洗面台交換・キッチン新規交換
2026年2月:ハウスクリーニング

□JR総武・中央緩行線「小岩」駅徒歩17分

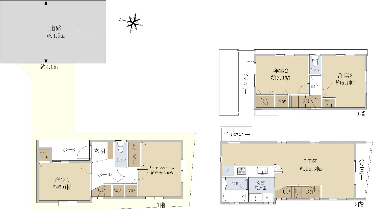
≪土地≫
□面積:74.42㎡(22.51坪)
□接道:東側幅員約4.5m

≪建物≫
□延床面積:98.12㎡
□間取り:3SLDK
□築年月:2007年10月

近期網站遭惡意攻擊,基於安全考量
目前僅接受會員查詢物件詳細資料
類型 一戶建
物件編號 1096659
名稱 江戸川区東小岩3丁目戸建
價格 5,480万円 > 5,399万円
物件現況 空家
管理費等 0円
修繕積立金 0円
所在地 東京都江戸川区東小岩3丁目
交通 総武線小岩 (步行 17 分)
格局 3SLDK
房號 --
總樓層 3階建 
屋齡 2007 年 (築 19 年)
面積 98.12㎡
約 29.68 坪
約 1,056.16 平方英呎
平米單價 日幣:55.85万円
台幣:11.01萬
港幣:2.74萬
坪單價 日幣:184.63万円
台幣:36.38萬
港幣:9.07萬
平方英呎 日幣:5.19万円
台幣:1.02萬
港幣:0.25萬
總戶數 1
方位 --
建築構造 木造
土地權利 所有権
用途地域 第1種住居地域
土地面積 74.42㎡
都市計畫 市街化区域
備註 本ページをご覧頂き誠にありがとうございます。

本物件は江戸川区東小岩3丁目、閑静な住宅地の3階建戸建です。
徒歩圏内に買物施設、総合病院など生活利便施設が揃う立地です。
是非現地にてご覧ください。

詳細は、フリーコール0120-828-813(携帯電話からも通話可能)、
新小岩営業センターまでお問い合わせください。
皆様からのお問い合わせを心よりお待ち申し上げております。
情報公開日 2025年12月22日
目前狀態 空家
合約狀態 仲介
個人情報蒐集前告知
JP-Home.com 日本房屋網為上益國際有限公司經營管理,為了確保消費者之個人資料、隱私及消費者權益之保護,於交易過程中將使用消費者之個人資料,謹依個人資料保護法第 8 條規定,蒐集個人資料除用於本公司之會員管理、客戶管理之檢索查詢等功能外,本公司將利用個人電話號碼、LINE、Email 資料進行行銷,如有侵害到個人權益,請告知請求刪除會員資料。


  • 宜家國際地產(統一編號:42647425)
    本網站所刊登之不動產物件均已合法授權刊登
    本網站內容享有著作權,禁止侵害,違者必究
    Copyright © 2011 - 2026 All Rights Reserved