物件搜尋:


東京都下 府中市(府中市是政4丁目戸建)

專家的建議


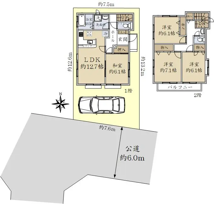
◆ゆったりと暮らせる4LDK的お家
◆全寝室約6.1帖以上と広々しています

◇太陽光パネル設置(実施年月:2010年7月)で省エネ生活を実現
◇電気代を節約できるエコキュート導入(実施年月:2010年7月)

◆明るく風通し的良い全室2面採光
◆広々した南道路(幅員約6.0m)で日照・採光をしっかり確保

◇自然的恵みあふれる閑静な住宅街
◇公園まで徒歩1分的子育てに便利な環境です
<

近期網站遭惡意攻擊,基於安全考量
目前僅接受會員查詢物件詳細資料
類型 一戶建
物件編號 1096815
名稱 府中市是政4丁目戸建
價格 4,280万円 > 3,980万円
物件現況 居住中
管理費等 0円
修繕積立金 0円
所在地 東京都府中市是政4丁目
交通 西武多摩川線是政 (步行 9 分)
格局 4LDK
房號 --
總樓層 2階建 
屋齡 2003 年 (築 23 年)
面積 96.88㎡
約 29.31 坪
約 1,042.82 平方英呎
平米單價 日幣:44.18万円
台幣:9.00萬
港幣:2.23萬
坪單價 日幣:146.04万円
台幣:29.74萬
港幣:7.37萬
平方英呎 日幣:4.10万円
台幣:0.84萬
港幣:0.21萬
總戶數 1
方位 --
建築構造 木造
土地權利 所有権
用途地域 準工業地域
土地面積 100.09㎡
都市計畫 市街化区域
備註 ご覧いただき誠にありがとうございます。
<府中市是政4丁目戸建>のご紹介です。

全室2面採光+南側道路の日当たり・通風の良いお家です。
太陽光発電やエコキュート等の省エネシステムが導入されており、
高効率で快適な暮らしを実現できます。

西武多摩川線「是政」駅まで徒歩9分の緑豊かな住宅街に位置し、
徒歩10分圏内にコンビニ、スーパー、公園等の施設がございます。
利便性と落ち着きを兼ね備えた、住み心地の良い環境です。
情報公開日 2025年12月23日
目前狀態 居住中
合約狀態 仲介
個人情報蒐集前告知
JP-Home.com 日本房屋網為上益國際有限公司經營管理,為了確保消費者之個人資料、隱私及消費者權益之保護,於交易過程中將使用消費者之個人資料,謹依個人資料保護法第 8 條規定,蒐集個人資料除用於本公司之會員管理、客戶管理之檢索查詢等功能外,本公司將利用個人電話號碼、LINE、Email 資料進行行銷,如有侵害到個人權益,請告知請求刪除會員資料。