物件搜尋:


東京都下 調布市(調布市深大寺北町6丁目戸建)

專家的建議


◆物件概要
・土地面積:381.37㎡ (約115.36坪)
・建築面積:121.5㎡ (約36.75坪)
・延床面積:243㎡ (約73.5坪)
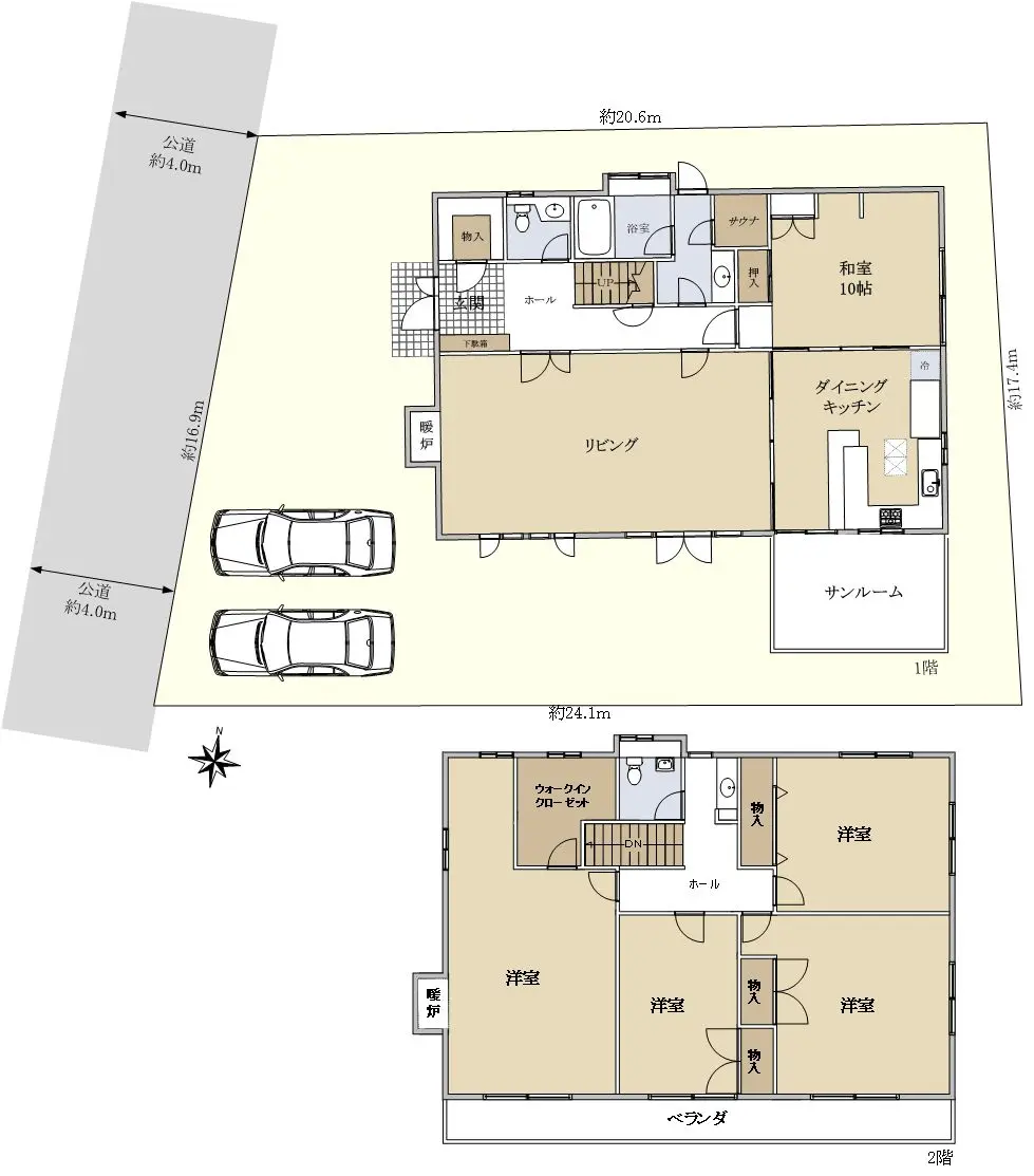
・間取り:5LDK
・築年数:1988年1月

◆アクセス
~2沿線利用可能~
・京王線「調布」駅までバス21分 バス停「山野」まで徒歩7分
・JR中央線「武蔵境」駅 までバス20分 バス停「吉野南」まで徒歩9分
◆ライフインフォメーション<

近期網站遭惡意攻擊,基於安全考量
目前僅接受會員查詢物件詳細資料
類型 一戶建
物件編號 1096900
名稱 調布市深大寺北町6丁目戸建
價格 9,480万円
物件現況 居住中
管理費等 0円
修繕積立金 0円
所在地 東京都調布市深大寺北町6丁目
交通 京王線調布 (步行 21 分)
格局 5LDK
房號 --
總樓層 2階建 
屋齡 1988 年 (築 38 年)
面積 243.00㎡
約 73.51 坪
約 2,615.65 平方英呎
平米單價 日幣:39.01万円
台幣:7.81萬
港幣:1.92萬
坪單價 日幣:128.97万円
台幣:25.82萬
港幣:6.33萬
平方英呎 日幣:3.62万円
台幣:0.73萬
港幣:0.18萬
總戶數 1
方位 --
建築構造 木造
土地權利 所有権
用途地域 第1種低層住居専用地域
土地面積 381.37㎡
都市計畫 市街化区域
備註 この度は『調布市深大寺北町6丁目戸建』のページをご覧頂き誠に有難うございます。

内見希望等ございましたら、どうぞお気軽にお問合せ下さい。
物件のご検討については、写真や図面だけでなく、
是非現地をご覧になることをお勧め致します。
現地をご覧頂くことで、周辺環境や物件の状態が
明確にご理解頂けるとともに、案内時にお供する
担当者により、プロの目から見た長所・短所を詳しく
ご説明差し上げることもできます。
こちらの物件にご興味をお持ちのお客様は是非とも
情報公開日 2025年12月24日
目前狀態 居住中
合約狀態 仲介
個人情報蒐集前告知
JP-Home.com 日本房屋網為上益國際有限公司經營管理,為了確保消費者之個人資料、隱私及消費者權益之保護,於交易過程中將使用消費者之個人資料,謹依個人資料保護法第 8 條規定,蒐集個人資料除用於本公司之會員管理、客戶管理之檢索查詢等功能外,本公司將利用個人電話號碼、LINE、Email 資料進行行銷,如有侵害到個人權益,請告知請求刪除會員資料。