物件搜尋:


東京23区 新宿区(新宿区山吹町 戸建)

專家的建議


【新宿区山吹町戸建】的ページをご覧頂き有難うございます。

◇不動産的購入を検討中的お客様へ◇
物件的ご検討については、一度現地を見ていただく事をお勧めします。
間取り図面や写真では判断できない部分もあります。
現地をご覧頂くことで周辺環境や室内的状況等を確認いただくだけでなく、
担当者より、物件的長所・短所や購入的流れ等を詳しくご説明させて頂きます。
内覧をご希望的お客様はお気軽にお問い合わせ下さい。

近期網站遭惡意攻擊,基於安全考量
目前僅接受會員查詢物件詳細資料
類型 一戶建
物件編號 1097217
名稱 新宿区山吹町 戸建
價格 14,980万円
物件現況 居住中
管理費等 0円
修繕積立金 0円
所在地 東京都新宿区山吹町
交通 東京メトロ有楽町線江戸川橋 (步行 6 分)
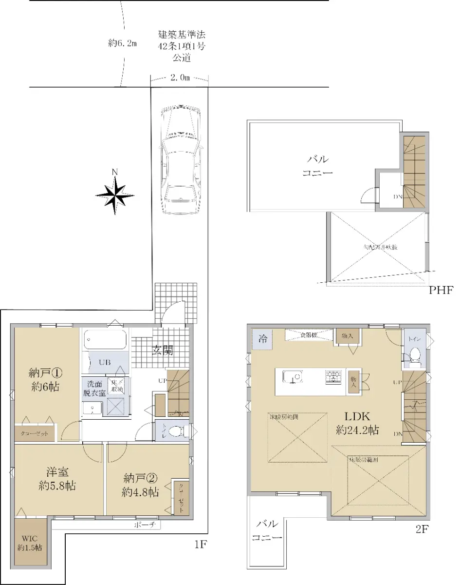
格局 1SLDK
房號 --
總樓層 2階建 
屋齡 2019 年 (築 7 年)
面積 92.77㎡
約 28.06 坪
約 998.58 平方英呎
平米單價 日幣:161.47万円
台幣:32.88萬
港幣:8.14萬
坪單價 日幣:533.80万円
台幣:108.69萬
港幣:26.92萬
平方英呎 日幣:15.00万円
台幣:3.05萬
港幣:0.76萬
總戶數 1
方位 --
建築構造 木造
土地權利 所有権
用途地域 準工業地域/商業地域
土地面積 84.14㎡
都市計畫 市街化区域
備註 【新宿区山吹町戸建】のページをご覧頂きありがとうございます。

新宿区と文京区の都心部へのアクセスがしやすい立地にありながらも
閑静な住宅地に位置しております。
物件に関することやその他不動産の購入に関するご質問等ございましたら、
フリーコール【0120-060-406】
お気軽に物件担当の『竹内(たけうち)』までお問い合わせください。

◆◆お買い替えによるご自宅の無料査定実施中◆◆
今お住まいのご自宅からお買い替えを検討しているお客様が
情報公開日 2025年12月27日
目前狀態 居住中
合約狀態 仲介
個人情報蒐集前告知
JP-Home.com 日本房屋網為上益國際有限公司經營管理,為了確保消費者之個人資料、隱私及消費者權益之保護,於交易過程中將使用消費者之個人資料,謹依個人資料保護法第 8 條規定,蒐集個人資料除用於本公司之會員管理、客戶管理之檢索查詢等功能外,本公司將利用個人電話號碼、LINE、Email 資料進行行銷,如有侵害到個人權益,請告知請求刪除會員資料。