物件搜尋:


東京23区 杉並区(杉並区南荻窪1丁目戸建)

專家的建議


【アクセス】
・JR中央線・総武線「荻窪」駅まで徒歩12分
・東京メトロ丸的内線「荻窪」駅まで徒歩12分

【物件概要~】
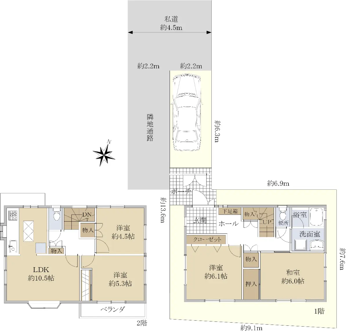
■用途地域:第1種低層住居専用地域
■敷地面積:84.06㎡
■建物面積:84.28㎡
■間取り:4LDK
■カースペース1台分有(車種による)
■室内大変綺麗にお使いいただいております!

近期網站遭惡意攻擊,基於安全考量
目前僅接受會員查詢物件詳細資料
類型 一戶建
物件編號 1097887
名稱 杉並区南荻窪1丁目戸建
價格 8,480万円
物件現況 居住中
管理費等 0円
修繕積立金 0円
所在地 東京都杉並区南荻窪1丁目
交通 中央線荻窪 (步行 12 分)
格局 4LDK
房號 --
總樓層 2階建 
屋齡 1999 年 (築 27 年)
面積 84.28㎡
約 25.49 坪
約 907.19 平方英呎
平米單價 日幣:100.62万円
台幣:20.29萬
港幣:5.00萬
坪單價 日幣:332.62万円
台幣:67.08萬
港幣:16.53萬
平方英呎 日幣:9.35万円
台幣:1.89萬
港幣:0.46萬
總戶數 1
方位 --
建築構造 木造
土地權利 所有権
用途地域 第1種低層住居専用地域
土地面積 84.06㎡
都市計畫 市街化区域
備註 ■╋■╋━━━━━━━━━━━━━━━━━━━━━━━━━━╋■╋■

この度は本ページをご覧いただきありがとうございます。

本物件は、「杉並区南荻窪1丁目」の閑静な住宅街にございます。

徒歩10分圏内にコンビニやスーパーがあり、生活環境良好な立地にございます。


まずはお気軽に物件詳細等お問い合わせ下さい。
情報公開日 2026年1月7日
目前狀態 居住中
合約狀態 仲介
個人情報蒐集前告知
JP-Home.com 日本房屋網為上益國際有限公司經營管理,為了確保消費者之個人資料、隱私及消費者權益之保護,於交易過程中將使用消費者之個人資料,謹依個人資料保護法第 8 條規定,蒐集個人資料除用於本公司之會員管理、客戶管理之檢索查詢等功能外,本公司將利用個人電話號碼、LINE、Email 資料進行行銷,如有侵害到個人權益,請告知請求刪除會員資料。