物件搜尋:


埼玉県 戸田市(ダイアパレス戸田公園)

- / -
近期網站遭惡意攻擊,基於安全考量
目前僅接受會員查詢物件詳細資料
類型 事務所
物件編號 1098334
名稱 ダイアパレス戸田公園
價格 6,500万円
物件現況 出租中
管理費等 25,700円
修繕積立金 19,420円
可月出租 284,350円
投報率 4.42%
所在地 埼玉県戸田市本町4丁目
交通 埼京線「戸田公園」 (步行 6 分)
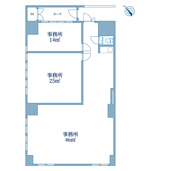
格局 1R
房號 --
總樓層 2階部分/10階建 
屋齡 1990 年 (築 36 年)
面積 壁芯122.50㎡
約 37.06 坪
約 1,318.59 平方英呎
陽台 6m²
約 1.82 坪
約 64.58 平方英呎
平米單價 日幣:53.06万円
台幣:10.65萬
港幣:2.62萬
坪單價 日幣:175.41万円
台幣:35.20萬
港幣:8.68萬
平方英呎 日幣:4.93万円
台幣:0.99萬
港幣:0.24萬
總戶數 25
方位 北東
建築構造 鉄骨鉄筋コンクリート造
土地權利 所有権
管理形態 --
管理公司 株式会社東急コミュニティー / 全部委託
土地面積 -
備註 ▼アクセス
・JR埼京線「戸田公園」駅 徒歩6分

▼共用部分
・10階建て2階部分
・総戸数:25戸
・オートロック ←あれば記載

▼専有部分
・北東・北西向きの角部屋
・事務所
・現在賃貸中

<オーナーチェンジ物件> 
・284,350円/月にて賃貸中
情報公開日 2026年1月11日
目前狀態 賃貸中
合約狀態 仲介
個人情報蒐集前告知
JP-Home.com 日本房屋網為上益國際有限公司經營管理,為了確保消費者之個人資料、隱私及消費者權益之保護,於交易過程中將使用消費者之個人資料,謹依個人資料保護法第 8 條規定,蒐集個人資料除用於本公司之會員管理、客戶管理之檢索查詢等功能外,本公司將利用個人電話號碼、LINE、Email 資料進行行銷,如有侵害到個人權益,請告知請求刪除會員資料。