物件搜尋:


東京都下 国分寺市(国分寺市西恋ヶ窪4丁目戸建)

專家的建議


■交通:JR中央線・JR武蔵野線「西国分寺」駅徒歩12分
    西武国分寺線「恋ヶ窪」駅 徒歩7分

■三井不動産レジデンシャル旧分譲・ファインコート西国分寺
 緑地、公園、インターロッキング舗装された開発道路にて構成された全34棟現場。

■西武建設施工
 2×4工法(枠組壁工法)にて建築された木造2階建。

■敷地面積:150.70㎡(45.58坪)
 カースペース(車種による)、サイクルス

近期網站遭惡意攻擊,基於安全考量
目前僅接受會員查詢物件詳細資料
類型 一戶建
物件編號 1098343
名稱 国分寺市西恋ヶ窪4丁目戸建
價格 6,980万円
物件現況 空家
管理費等 0円
修繕積立金 0円
所在地 東京都国分寺市西恋ヶ窪4丁目
交通 中央線西国分寺 (步行 12 分)
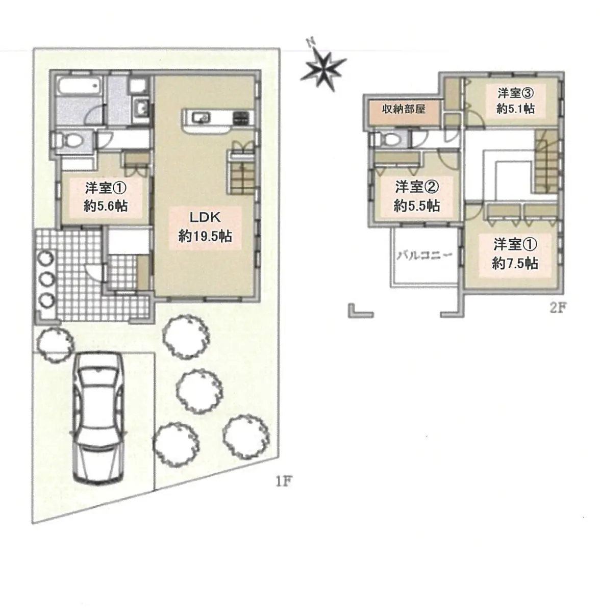
格局 4LDK
房號 --
總樓層 2階建 
屋齡 2007 年 (築 19 年)
面積 107.04㎡
約 32.38 坪
約 1,152.18 平方英呎
平米單價 日幣:65.21万円
台幣:13.08萬
港幣:3.22萬
坪單價 日幣:215.57万円
台幣:43.25萬
港幣:10.66萬
平方英呎 日幣:6.06万円
台幣:1.22萬
港幣:0.30萬
總戶數 1
方位 --
建築構造 木造
土地權利 所有権
用途地域 第1種低層住居専用地域
土地面積 150.70㎡
都市計畫 市街化区域
備註 この度は『国分寺市西恋ヶ窪4丁目戸建』のページをご覧いただき、誠に有難うございます。

ご利用路線を2駅3路線から選択可能、最寄り「恋ヶ窪」駅までは徒歩7分、
JR中央線特別快速停車駅「国分寺」駅までひと駅(約3分)、西武線急行停車駅「小川」駅まではふた駅(約5分)と通勤や通学には便利な立地です。
物件は幅員約6.0mの南側公道に面する、南東×南西向きの2階建て、全室2面採光で陽当り通風良好です。


***不動産の購入を検討中のお客様へ****

物件探しの基本は「物件を現実に見て頂くこと」にあります。
情報公開日 2026年1月11日
目前狀態 空家
合約狀態 仲介
個人情報蒐集前告知
JP-Home.com 日本房屋網為上益國際有限公司經營管理,為了確保消費者之個人資料、隱私及消費者權益之保護,於交易過程中將使用消費者之個人資料,謹依個人資料保護法第 8 條規定,蒐集個人資料除用於本公司之會員管理、客戶管理之檢索查詢等功能外,本公司將利用個人電話號碼、LINE、Email 資料進行行銷,如有侵害到個人權益,請告知請求刪除會員資料。