物件搜尋:


東京23区 板橋区(板橋区徳丸一丁目ビル)

專家的建議


■2路線2駅利用可能
■東武練馬駅まで徒歩9分
■南側約6.0m公道、東側道路約11.0m公道
■現在一部賃貸中(全6室中3室)
■スーパー、ドラッグストアまで徒歩2分
■小学校まで徒歩3分
■コンビニまで徒歩5分

(2026年1月12日現在 )
満室想定年額賃料6,120,000円 (現況貸室数3/総貸室数6)
満室想定利回り6.24%【ライフインフォメーション】
■コモディイイダ徳

近期網站遭惡意攻擊,基於安全考量
目前僅接受會員查詢物件詳細資料
類型 整棟大樓
物件編號 1098985
名稱 板橋区徳丸一丁目ビル
價格 9,800万円
物件現況 出租中
管理費等 0円
修繕積立金 0円
可月出租 510,000円
投報率 6.24%
所在地 東京都板橋区徳丸1丁目
交通 東武東上線東武練馬 (步行 9 分)
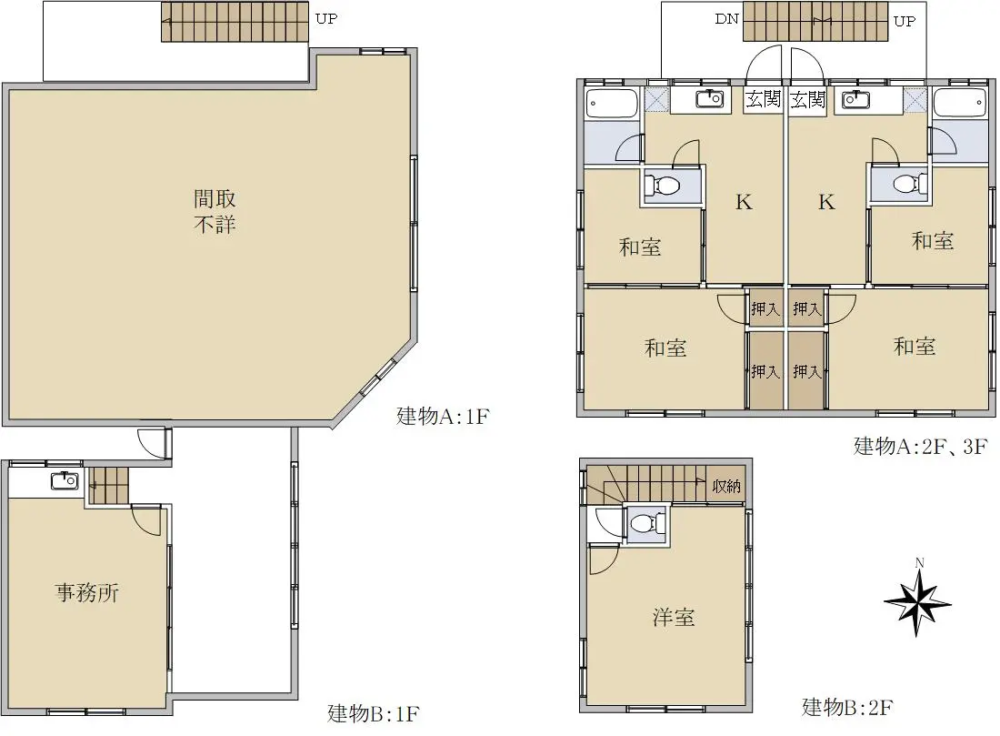
格局 2K
房號 --
總樓層 3階建 
屋齡 1976 年 (築 50 年)
面積 192.78㎡
約 58.32 坪
約 2,075.08 平方英呎
平米單價 日幣:50.84万円
台幣:10.15萬
港幣:2.51萬
坪單價 日幣:168.05万円
台幣:33.54萬
港幣:8.29萬
平方英呎 日幣:4.72万円
台幣:0.94萬
港幣:0.23萬
總戶數 4
方位 --
建築構造 鉄骨造
土地權利 所有権
用途地域 第1種中高層住居専用地域
土地面積 159.26㎡
都市計畫 市街化区域
備註 一部賃貸中の鉄骨造3階建、木造2階建、2棟のご紹介です。
東武東上線・東武練馬駅徒歩9分の通り沿いに面した、視認性良好な売ビルです。また、都営三田線・西台駅も利用可能も利用できます。
徒歩圏内には買い物施設が充実しており、単世帯の入居者の方、事務所利用の方にとっては嬉しいポイントです。
ご興味ある方は、是非現地をご確認ください。物件詳細についても担当竹田までどうぞ。
たくさんのお問合せお待ちしております。
情報公開日 2026年1月18日
目前狀態 賃貸中
合約狀態 仲介
個人情報蒐集前告知
JP-Home.com 日本房屋網為上益國際有限公司經營管理,為了確保消費者之個人資料、隱私及消費者權益之保護,於交易過程中將使用消費者之個人資料,謹依個人資料保護法第 8 條規定,蒐集個人資料除用於本公司之會員管理、客戶管理之檢索查詢等功能外,本公司將利用個人電話號碼、LINE、Email 資料進行行銷,如有侵害到個人權益,請告知請求刪除會員資料。