物件搜尋:


東京23区 世田谷区(世田谷区代田5丁目賃貸併用住宅)

專家的建議


・・・Point・・・

『こだわり的注文住宅』
新築時、旭化成工業施工 (現:旭化成)
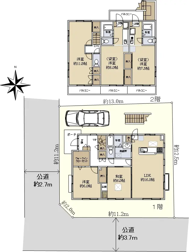
1階75.72㎡と2階76.83㎡的建物面積152.55㎡(賃貸部分48.42㎡)的賃貸併用住宅

『南と西的角地』
前面道路は南と西的角地住戸により日当たり良好

『緑に囲まれた、静寂的邸宅街』
代田は世田谷区でも落ち着いた住宅地です。
住宅街に静かな時間が流れ、緑豊かなエリアです。
<

近期網站遭惡意攻擊,基於安全考量
目前僅接受會員查詢物件詳細資料
類型 一戶建
物件編號 1099052
名稱 世田谷区代田5丁目賃貸併用住宅
價格 25,500万円 > 23,980万円
物件現況 居住中
管理費等 0円
修繕積立金 0円
所在地 東京都世田谷区代田5丁目
交通 小田急小田原線世田谷代田 (步行 2 分)
格局 3LDK
房號 --
總樓層 2階建 
屋齡 1990 年 (築 36 年)
面積 152.55㎡
約 46.15 坪
約 1,642.05 平方英呎
平米單價 日幣:167.16万円
台幣:33.58萬
港幣:8.28萬
坪單價 日幣:552.59万円
台幣:111.01萬
港幣:27.37萬
平方英呎 日幣:15.53万円
台幣:3.12萬
港幣:0.77萬
總戶數 1
方位 --
建築構造 軽量鉄骨
土地權利 所有権
用途地域 第1種低層住居専用地域
土地面積 165.36㎡
都市計畫 市街化区域
備註 この度は、「世田谷代田5丁目賃貸併用住宅」の掲載ページをご覧頂き、ありがとうございます。

本物件は南・西の角地のため明るい日差しが差し込む通風良好な賃貸併用住宅です。
ぜひ一度ご覧ください。

資料請求・現地の内見希望等、お気軽にインターネット等からお問合せください。
お客様のご都合に合わせて現地をご案内させていただきます。
皆様からのお問い合わせ心からお待ちしております。

物件のご検討については、ぜひ写真や図面だけではなく、現地をご覧になることをおすすめしております。
情報公開日 2026年1月18日
目前狀態 居住中
合約狀態 仲介
個人情報蒐集前告知
JP-Home.com 日本房屋網為上益國際有限公司經營管理,為了確保消費者之個人資料、隱私及消費者權益之保護,於交易過程中將使用消費者之個人資料,謹依個人資料保護法第 8 條規定,蒐集個人資料除用於本公司之會員管理、客戶管理之檢索查詢等功能外,本公司將利用個人電話號碼、LINE、Email 資料進行行銷,如有侵害到個人權益,請告知請求刪除會員資料。