物件搜尋:


東京23区 練馬区(練馬区西大泉5丁目戸建て)

專家的建議


◇西武池袋線「保谷」駅停徒歩17分

≪物件概要≫
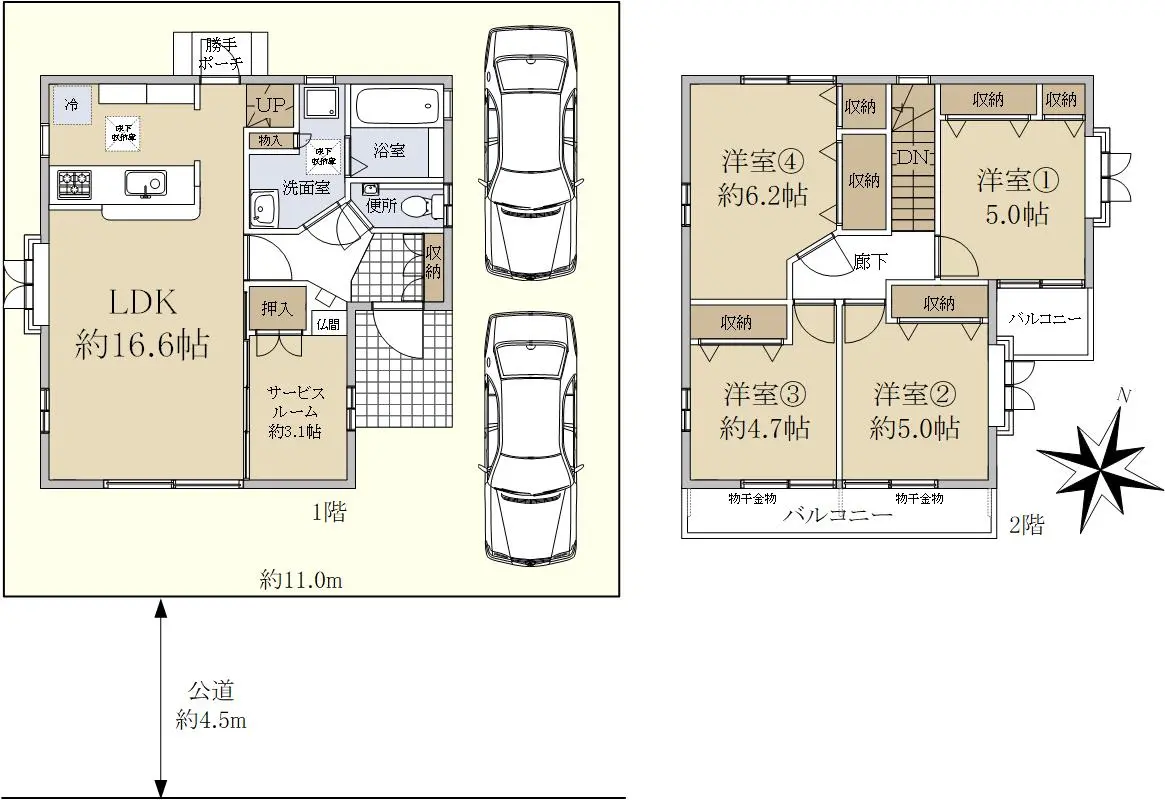
□敷地面積:121.13㎡
□軽量鉄骨造2階建
□建物面積:95.32㎡ 1階:48.07㎡ 2階:47.25㎡ 
□接道:南側公道約4.5m的為、日当たり良好です。
□間取:4SLDK

≪周辺環境≫
〇練馬区立大泉第四小学校・・・約800m徒歩10分
〇練馬区立大泉西中学校・・・約1300m徒歩17分
〇いなげや練馬西大泉

近期網站遭惡意攻擊,基於安全考量
目前僅接受會員查詢物件詳細資料
類型 一戶建
物件編號 1099175
名稱 練馬区西大泉5丁目戸建て
價格 5,380万円
物件現況 居住中
管理費等 0円
修繕積立金 0円
所在地 東京都練馬区西大泉5丁目
交通 西武池袋・豊島線保谷 (步行 17 分)
格局 4SLDK
房號 --
總樓層 2階建 
屋齡 1999 年 (築 27 年)
面積 95.32㎡
約 28.83 坪
約 1,026.02 平方英呎
平米單價 日幣:56.44万円
台幣:11.26萬
港幣:2.78萬
坪單價 日幣:186.58万円
台幣:37.24萬
港幣:9.20萬
平方英呎 日幣:5.24万円
台幣:1.05萬
港幣:0.26萬
總戶數 1
方位 --
建築構造 軽量鉄骨
土地權利 所有権
用途地域 第1種低層住居専用地域
土地面積 121.13㎡
都市計畫 市街化区域
備註 -不動産の購入を検討中のお客様へ-
物件のご検討については、写真や図面だけではなく、現地を見ていただく事をお勧めします。現地をご覧頂くことにより周辺環境や建物の維持状況を確認いただくだけでなく、ご案内する担当者より、プロの目から見た長所や短所等を詳しくご説明差し上げる事もできます。内見希望、物件の詳細のお問い合わせは、お気軽にご連絡下さい。

資料のご請求につきましてもお気軽にご相談ください。
お問い合わせ、心よりお待ちしております。

お客様専用フリーコールは0120-256‐558です。

担当:伊東(いとう)
情報公開日 2026年1月19日
目前狀態 居住中
合約狀態 仲介
個人情報蒐集前告知
JP-Home.com 日本房屋網為上益國際有限公司經營管理,為了確保消費者之個人資料、隱私及消費者權益之保護,於交易過程中將使用消費者之個人資料,謹依個人資料保護法第 8 條規定,蒐集個人資料除用於本公司之會員管理、客戶管理之檢索查詢等功能外,本公司將利用個人電話號碼、LINE、Email 資料進行行銷,如有侵害到個人權益,請告知請求刪除會員資料。