物件搜尋:


東京23区 練馬区(練馬区高野台4丁目戸建)

專家的建議


≪交通アクセス≫
・西武池袋線「石神井公園」駅まで徒歩13分
・西武池袋線「練馬高野台」駅まで徒歩14分

≪特徴≫
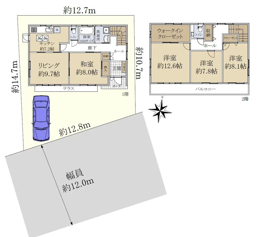
〇土地面積:158.60㎡(47.97坪)
〇建物面積:137.40㎡(41.56坪)
〇鉄筋コンクリート造
〇南東向き
〇陽当たり・通風良好
〇開放感的ある眺望
〇浴室1616サイズ~ライフインフォメーション~
・セブンイレブン練馬高野台4丁目店…約80m 徒

近期網站遭惡意攻擊,基於安全考量
目前僅接受會員查詢物件詳細資料
類型 一戶建
物件編號 1099275
名稱 練馬区高野台4丁目戸建
價格 13,000万円
物件現況 居住中
管理費等 0円
修繕積立金 0円
所在地 東京都練馬区高野台4丁目
交通 西武池袋・豊島線練馬高野台 (步行 14 分)
格局 4LDK
房號 --
總樓層 2階建 
屋齡 2003 年 (築 23 年)
面積 137.40㎡
約 41.56 坪
約 1,478.97 平方英呎
平米單價 日幣:94.61万円
台幣:18.88萬
港幣:4.67萬
坪單價 日幣:312.77万円
台幣:62.43萬
港幣:15.42萬
平方英呎 日幣:8.79万円
台幣:1.75萬
港幣:0.43萬
總戶數 1
方位 --
建築構造 鉄筋コンクリート造
土地權利 所有権
用途地域 第1種住居地域
土地面積 158.60㎡
都市計畫 市街化区域
備註 この度は「練馬区高野台4丁目戸建」のページをご覧頂き、誠にありがとうございます。

本物件は、鉄筋コンクリート造の戸建物件です。
西武池袋線「石神井公園」駅まで徒歩13分、
「練馬高野台」駅まで徒歩14分に立地しております。

前面道路幅員が約12.0mあり、南東向きの為、陽当たり良好です。

物件をご検討されている方は、図面や写真だけでなく、
是非現地まで足をお運び頂き、ご覧頂ければと思います。
情報公開日 2026年1月20日
目前狀態 居住中
合約狀態 仲介
個人情報蒐集前告知
JP-Home.com 日本房屋網為上益國際有限公司經營管理,為了確保消費者之個人資料、隱私及消費者權益之保護,於交易過程中將使用消費者之個人資料,謹依個人資料保護法第 8 條規定,蒐集個人資料除用於本公司之會員管理、客戶管理之檢索查詢等功能外,本公司將利用個人電話號碼、LINE、Email 資料進行行銷,如有侵害到個人權益,請告知請求刪除會員資料。