物件搜尋:


東京23区 世田谷区(世田谷区奥沢1丁目戸建)

專家的建議


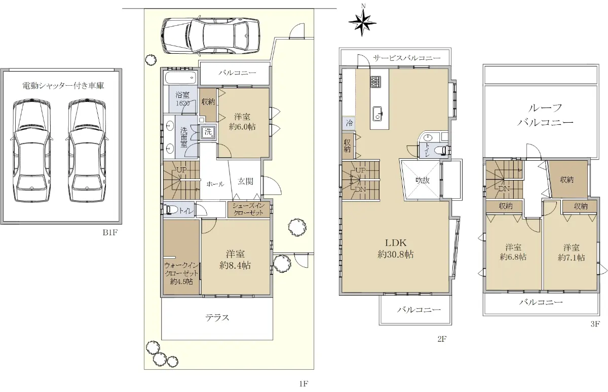
■土地面積150.00㎡(約45.37坪)
■建物面積185.91㎡(約56.23坪、車庫部分36.35㎡を含む)
■駐車3台可能(車庫2台分+カースペース1台分、車種による)
■シャッター付きビルトインガレージ
■約30.8帖的LDK
■全居室6帖以上的4LDK
■全居室収納
■約4.5帖的ウォークインクローゼット
■ルーフバルコニー
■南向きテラス

◇2024年4月 キッチン交換、

近期網站遭惡意攻擊,基於安全考量
目前僅接受會員查詢物件詳細資料
類型 一戶建
物件編號 1099277
名稱 世田谷区奥沢1丁目戸建
價格 22,000万円
物件現況 居住中
管理費等 0円
修繕積立金 0円
所在地 東京都世田谷区奥沢1丁目
交通 東急目黒線奥沢 (步行 11 分)
格局 4LDK
房號 --
總樓層 3階建 
屋齡 2006 年 (築 20 年)
面積 185.91㎡
約 56.24 坪
約 2,001.14 平方英呎
平米單價 日幣:118.34万円
台幣:23.62萬
港幣:5.84萬
坪單價 日幣:391.20万円
台幣:78.08萬
港幣:19.29萬
平方英呎 日幣:10.99万円
台幣:2.19萬
港幣:0.54萬
總戶數 1
方位 --
建築構造 木造
土地權利 所有権
用途地域 第1種低層住居専用地域
土地面積 150.00㎡
都市計畫 市街化区域
備註 奥沢1丁目の閑静な住宅街に立地しています。
駐車が3台可能(車庫2台分+カースペース1台分、車種による)です。

ルーフバルコニーや南向きテラスがあり、
約30.8帖のLDKをはじめ、全居室6帖以上の4LDKの間取りです。

物件のご検討については、ぜひ写真や図面だけではなく、現地をご覧になることをおすすめしております。
現地をご覧頂くことにより周辺環境や物件の仕様等を確認いただくだけでなく、
ご案内する担当者より、プロの目から見た長所・短所等を詳しくご説明差し上げる事もできますので、ご興味をお持ちの方は、お気軽に下記フリーコールまでご一報下さいませ。

情報公開日 2026年1月20日
目前狀態 居住中
合約狀態 仲介
個人情報蒐集前告知
JP-Home.com 日本房屋網為上益國際有限公司經營管理,為了確保消費者之個人資料、隱私及消費者權益之保護,於交易過程中將使用消費者之個人資料,謹依個人資料保護法第 8 條規定,蒐集個人資料除用於本公司之會員管理、客戶管理之檢索查詢等功能外,本公司將利用個人電話號碼、LINE、Email 資料進行行銷,如有侵害到個人權益,請告知請求刪除會員資料。