物件搜尋:


東京都下 小金井市(小金井市桜町1丁目戸建)

專家的建議


【アクセス】
・JR中央線「武蔵小金井」駅徒歩17分
 
【概要】
・三井ハウス施工
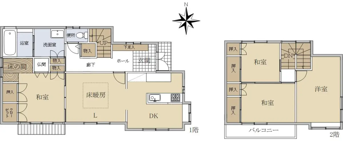
・木造2階建て
・4LDK
・角地
・北側公道約5.4m、東側公道約5.2mに面す 


◇ライフインフォメーション
・ファミリーマート小金井桜町店まで約370m徒歩5分
・いなげや小金井本町店まで約640m徒歩8分
・ウェルパーク小金井緑町店まで約1010

近期網站遭惡意攻擊,基於安全考量
目前僅接受會員查詢物件詳細資料
類型 一戶建
物件編號 1099312
名稱 小金井市桜町1丁目戸建
價格 7,900万円 > 7,770万円
物件現況 空家
管理費等 0円
修繕積立金 0円
所在地 東京都小金井市桜町1丁目
交通 中央線武蔵小金井 (步行 17 分)
格局 4LDK
房號 --
總樓層 2階建 
屋齡 2000 年 (築 26 年)
面積 101.85㎡
約 30.81 坪
約 1,096.31 平方英呎
平米單價 日幣:77.57万円
台幣:15.37萬
港幣:3.82萬
坪單價 日幣:256.41万円
台幣:50.80萬
港幣:12.64萬
平方英呎 日幣:7.21万円
台幣:1.43萬
港幣:0.36萬
總戶數 1
方位 --
建築構造 木造
土地權利 所有権
用途地域 第1種低層住居専用地域
土地面積 127.63㎡
都市計畫 市街化区域
備註 この度は「小金井市桜町1丁目 戸建」のページをご覧いただき、
誠にありがとうございます。

当物件は、JR中央線「武蔵小金井」駅徒歩17分にございます。
周辺は、スーパーマーケットやコンビニエンスストアが徒歩10分以内にあり生活しやすい立地です。
また、目の前には聖ヨハネ会桜町病院があります。
実際に足を運ぶことにより物件の状態、周辺環境等をご理解いただけると思います。

住宅ローン含む資金計画はもちろん、購入の流れや不動産に関する
一般的なお話など担当よりご説明させて頂きます。
情報公開日 2026年1月20日
目前狀態 空家
合約狀態 仲介
個人情報蒐集前告知
JP-Home.com 日本房屋網為上益國際有限公司經營管理,為了確保消費者之個人資料、隱私及消費者權益之保護,於交易過程中將使用消費者之個人資料,謹依個人資料保護法第 8 條規定,蒐集個人資料除用於本公司之會員管理、客戶管理之檢索查詢等功能外,本公司將利用個人電話號碼、LINE、Email 資料進行行銷,如有侵害到個人權益,請告知請求刪除會員資料。