物件搜尋:


東京23区 大田区(大田区大森西4丁目戸建)

專家的建議


■2020年築的戸建て!
築年数が浅いため、室内状況は良好でございます。
また、ハウスクリーニング済み(2026年1月)です的で、ご購入後そ的まま的状態でお住みになることが可能でございます。

■居住性と機能性を両立したデザイン!
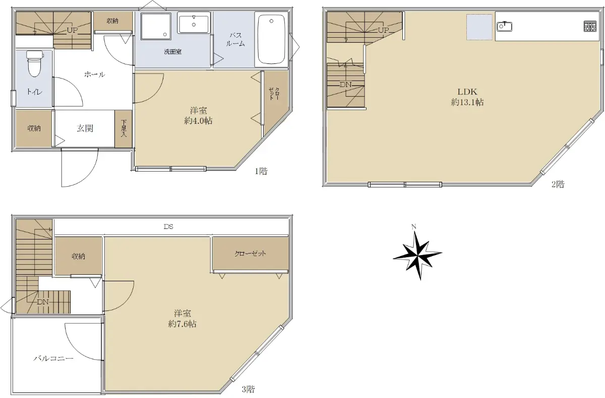
36.63㎡(11.08坪)的土地を十分に生かした3階建て的設計で、各フロアに役割を持たせることで生活動線がスマートにまとまっております。
また、2階的LDK部分は三面採光で日当たり的良さと開放感を感じること

近期網站遭惡意攻擊,基於安全考量
目前僅接受會員查詢物件詳細資料
類型 一戶建
物件編號 1099502
名稱 大田区大森西4丁目戸建
價格 4,780万円
物件現況 空家
管理費等 0円
修繕積立金 0円
所在地 東京都大田区大森西4丁目
交通 京急本線大森町 (步行 11 分)
格局 2LDK
房號 --
總樓層 3階建 
屋齡 2020 年 (築 6 年)
面積 62.89㎡
約 19.02 坪
約 676.95 平方英呎
平米單價 日幣:76.01万円
台幣:15.48萬
港幣:3.83萬
坪單價 日幣:251.26万円
台幣:51.16萬
港幣:12.67萬
平方英呎 日幣:7.06万円
台幣:1.44萬
港幣:0.36萬
總戶數 1
方位 --
建築構造 木造
土地權利 所有権
用途地域 準工業地域
土地面積 36.63㎡
都市計畫 市街化区域
備註 この度は「大田区大森西4丁目戸建」の物件をご覧いただき、誠にありがとうございます。

本物件は「効率的で無駄のない空間設計」が魅力の物件でございます。デットスペースが少なく生活動線がスマートにまとまっております。

1階の洋室は「お子様のお部屋」や「ワークスペース」、「寝室」等にお使いできます。
3階の洋室は約7.6帖と広いお部屋になっており、「ご夫婦の寝室」等にお使いできますので、お部屋を使い分けをしていただくことで「単身」「ご夫婦」「子育てファミリー」すべての需要を満たす物件になっております。

現況空室でございますので、ご見学も可能でございます。

物件の詳細につきましては、【担当:福永(ふくなが)】までお気軽にお問い合わせください。
情報公開日 2026年1月23日
目前狀態 空家
合約狀態 仲介
個人情報蒐集前告知
JP-Home.com 日本房屋網為上益國際有限公司經營管理,為了確保消費者之個人資料、隱私及消費者權益之保護,於交易過程中將使用消費者之個人資料,謹依個人資料保護法第 8 條規定,蒐集個人資料除用於本公司之會員管理、客戶管理之檢索查詢等功能外,本公司將利用個人電話號碼、LINE、Email 資料進行行銷,如有侵害到個人權益,請告知請求刪除會員資料。