物件搜尋:


東京23区 中野区(中野区江古田1丁目 戸建)

專家的建議


【交通情報】
◇大江戸線「新江古田」駅 徒歩12分
◇大江戸線「落合南長崎」駅 徒歩17分

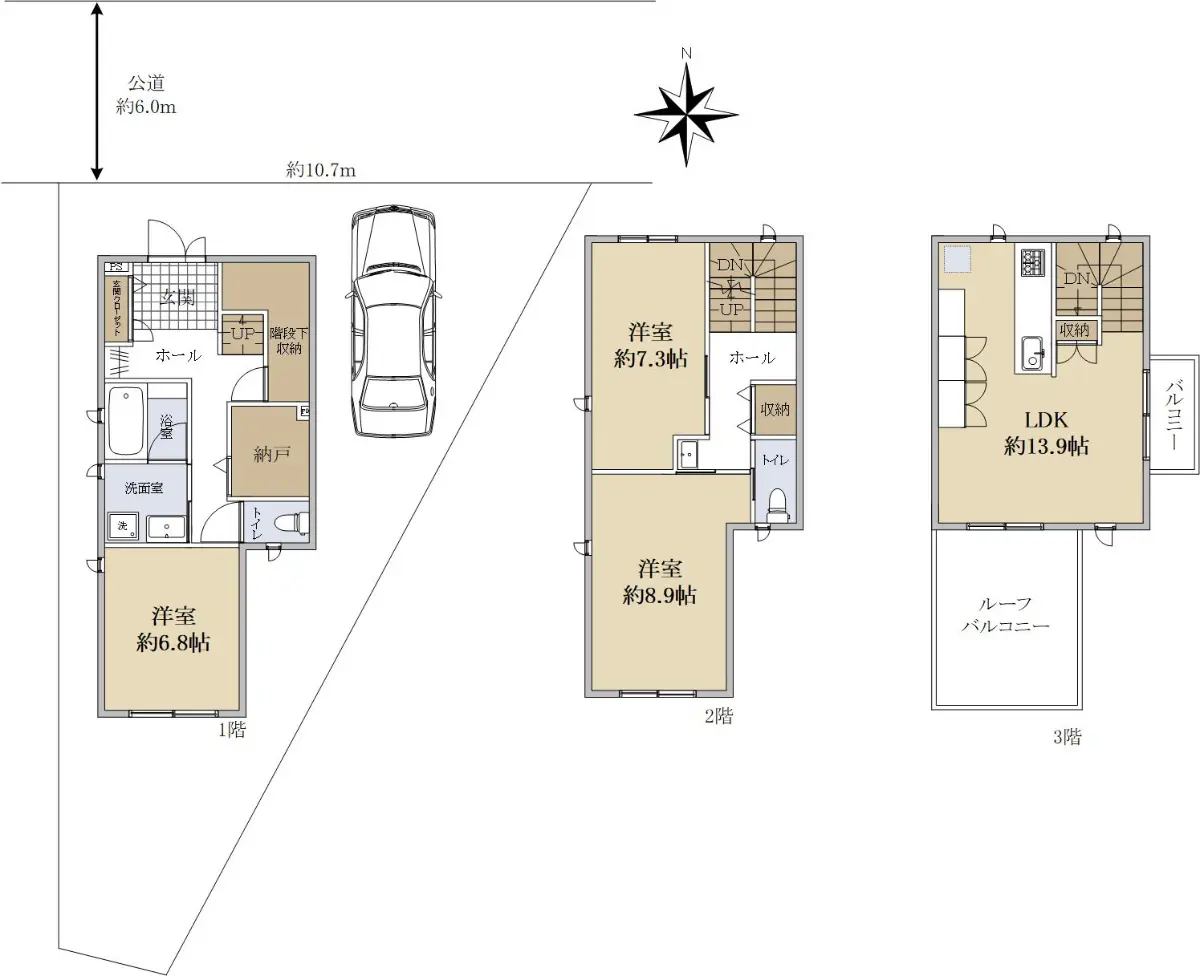
≪物件概要≫
□トヨタホーム施工的注文住宅
□軽量鉄骨造3階建
□ルーフバルコニーから的眺望が良好です。
□敷地面積:106.10㎡
□建物面積:105.98㎡ 1階:39.25㎡ 2階:39.25㎡ 3階:27.48㎡ 
□前面道路:公道約6.0m
□床暖房あり(設置個所:リビングおよび、各洋

近期網站遭惡意攻擊,基於安全考量
目前僅接受會員查詢物件詳細資料
類型 一戶建
物件編號 1099918
名稱 中野区江古田1丁目 戸建
價格 14,800万円 > 12,800万円
物件現況 居住中
管理費等 0円
修繕積立金 0円
所在地 東京都中野区江古田1丁目
交通 都営大江戸線新江古田 (步行 12 分)
格局 3SLDK
房號 --
總樓層 3階建 
屋齡 2023 年 (築 3 年)
面積 105.98㎡
約 32.06 坪
約 1,140.77 平方英呎
平米單價 日幣:139.65万円
台幣:27.72萬
港幣:6.88萬
坪單價 日幣:461.65万円
台幣:91.64萬
港幣:22.74萬
平方英呎 日幣:12.97万円
台幣:2.58萬
港幣:0.64萬
總戶數 1
方位 --
建築構造 軽量鉄骨
土地權利 所有権
用途地域 第1種低層住居専用地域
土地面積 106.10㎡
都市計畫 市街化区域
備註 -不動産の購入を検討中のお客様へ-
物件のご検討については、写真や図面だけではなく、現地を見ていただく事をお勧めします。現地をご覧頂くことにより周辺環境や建物の維持状況を確認いただくだけでなく、ご案内する担当者より、プロの目から見た長所や短所等を詳しくご説明差し上げる事もできます。内見希望、物件の詳細のお問い合わせは、お気軽にご連絡下さい。

資料のご請求につきましてもお気軽にご相談ください。
お問い合わせ、心よりお待ちしております。

お客様専用フリーコールは0120-256‐558です。

担当:伊東(いとう)
情報公開日 2026年1月26日
目前狀態 居住中
合約狀態 仲介
個人情報蒐集前告知
JP-Home.com 日本房屋網為上益國際有限公司經營管理,為了確保消費者之個人資料、隱私及消費者權益之保護,於交易過程中將使用消費者之個人資料,謹依個人資料保護法第 8 條規定,蒐集個人資料除用於本公司之會員管理、客戶管理之檢索查詢等功能外,本公司將利用個人電話號碼、LINE、Email 資料進行行銷,如有侵害到個人權益,請告知請求刪除會員資料。