物件搜尋:


京都府 京都市山科区(京都市山科区西野山欠ノ上町戸建)

專家的建議


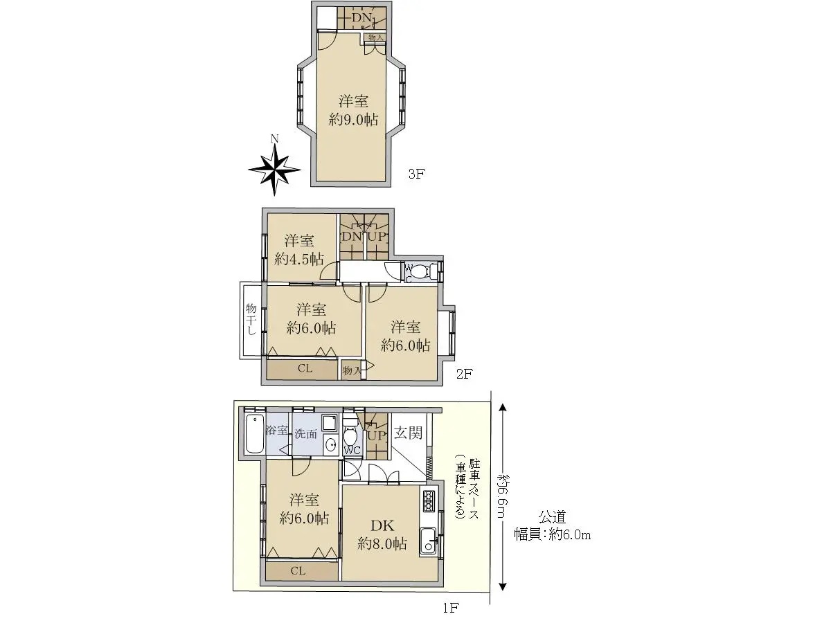
◇間取り:5DK
◇延床面積:91.21㎡
◇1998年8月建築
◇間口:約6.6m
◇前面道路幅員:約6.0m
◇東向き【周辺施設】
・コープ山科新十条…約500m
・セブンイレブン京都山科百々町店…約450m
・百々小学校…約590m
・山科中学校…約1180m
・山科区役所…約1300m

近期網站遭惡意攻擊,基於安全考量
目前僅接受會員查詢物件詳細資料
類型 一戶建
物件編號 1100364
名稱 京都市山科区西野山欠ノ上町戸建
價格 1,480万円
物件現況 居住中
管理費等 0円
修繕積立金 0円
所在地 京都府京都市山科区西野山欠ノ上町
交通 京都市東西線椥辻 (步行 18 分)
格局 5DK
房號 --
總樓層 3階建 
屋齡 1998 年 (築 28 年)
面積 91.21㎡
約 27.59 坪
約 981.78 平方英呎
平米單價 日幣:16.23万円
台幣:3.30萬
港幣:0.82萬
坪單價 日幣:53.64万円
台幣:10.92萬
港幣:2.71萬
平方英呎 日幣:1.51万円
台幣:0.31萬
港幣:0.08萬
總戶數 1
方位 --
建築構造 木造
土地權利 所有権
用途地域 準工業地域
土地面積 60.29㎡
都市計畫 市街化区域
備註 この度は【京都市山科区西野山欠ノ上町戸建】の物件紹介ページをご覧いただき誠に有難うございます。

本物件は5DKの間取りで水回り一式(キッチン・洗面・浴室・トイレ)が1階にございます。

また、間口:約6.6m、前面道路幅員も約6.0mと余裕のあるスペースとなっておりますのでお車の運転が苦手なお客様にもお勧めの物件となっております。

物件に関するお問合せやご内覧希望、ご購入相談は担当「金森」までお気軽にお問合せください。

●お問合せ先
●すみふの仲介ステップ
情報公開日 2026年1月30日
目前狀態 居住中
合約狀態 仲介
個人情報蒐集前告知
JP-Home.com 日本房屋網為上益國際有限公司經營管理,為了確保消費者之個人資料、隱私及消費者權益之保護,於交易過程中將使用消費者之個人資料,謹依個人資料保護法第 8 條規定,蒐集個人資料除用於本公司之會員管理、客戶管理之檢索查詢等功能外,本公司將利用個人電話號碼、LINE、Email 資料進行行銷,如有侵害到個人權益,請告知請求刪除會員資料。