物件搜尋:


大阪府 大阪市生野区(大阪市生野区巽北4丁目戸建)

專家的建議


☆大阪メトロ千日前線「北巽」駅まで徒歩5分
☆南西角地的ため、日当たり良好!
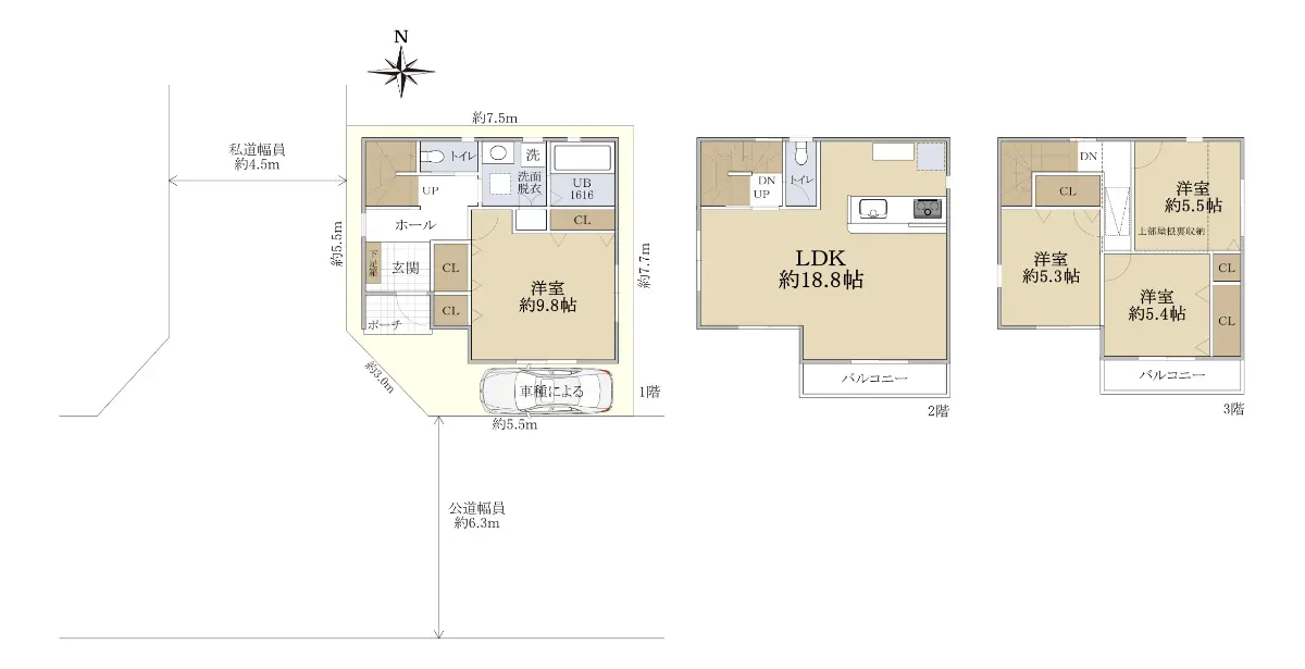
☆4LDK+小屋裏収納有り!
☆南側道路幅員は、約6.3m!
☆平成21年10月建築
☆IHコンロ
☆食器洗乾燥機付き
☆浴室乾燥暖房機付き
☆LD床暖房
☆広々玄関ホール
☆1階洋室広々約9.8帖

近期網站遭惡意攻擊,基於安全考量
目前僅接受會員查詢物件詳細資料
類型 一戶建
物件編號 1100650
名稱 大阪市生野区巽北4丁目戸建
價格 3,280万円 > 3,180万円
物件現況 居住中
管理費等 0円
修繕積立金 0円
所在地 大阪府大阪市生野区巽北4丁目
交通 大阪メトロ千日前線北巽 (步行 5 分)
格局 4LDK
房號 --
總樓層 3階建 
屋齡 2009 年 (築 17 年)
面積 106.92㎡
約 32.34 坪
約 1,150.89 平方英呎
平米單價 日幣:30.68万円
台幣:6.25萬
港幣:1.55萬
坪單價 日幣:101.41万円
台幣:20.65萬
港幣:5.11萬
平方英呎 日幣:2.85万円
台幣:0.58萬
港幣:0.14萬
總戶數 1
方位 --
建築構造 木造
土地權利 所有権
用途地域 準工業地域
土地面積 56.40㎡
都市計畫 市街化区域
備註 ☆大阪メトロ千日前線「北巽」駅まで徒歩5分
☆南西角地のため、日当たり良好!
☆南側道路幅員は、約6.3m!
☆4LDK+小屋裏収納有り!
☆平成21年10月建築
☆IHコンロ
☆食器洗乾燥機付き
☆浴室乾燥暖房機付き
☆LD床暖房
☆広々玄関ホール
情報公開日 2026年2月1日
目前狀態 居住中
合約狀態 仲介
個人情報蒐集前告知
JP-Home.com 日本房屋網為上益國際有限公司經營管理,為了確保消費者之個人資料、隱私及消費者權益之保護,於交易過程中將使用消費者之個人資料,謹依個人資料保護法第 8 條規定,蒐集個人資料除用於本公司之會員管理、客戶管理之檢索查詢等功能外,本公司將利用個人電話號碼、LINE、Email 資料進行行銷,如有侵害到個人權益,請告知請求刪除會員資料。