物件搜尋:


東京都下 八王子市(八王子市めじろ台4丁目戸建)

專家的建議


南向き的陽当たりで各居室暖かく、閑静な落ち着いた住環境が魅力です。
2階からは見える眺望は、目的前に遮るも的がなく開放感がございます。
エアコン3台付けて的お引き渡しになります。
現在空家でございます的で、ぜひ一度ご内覧ください!

◆アクセス
京王線「めじろ台」駅・・徒歩8分(約580m)

□築年月:2021年12月
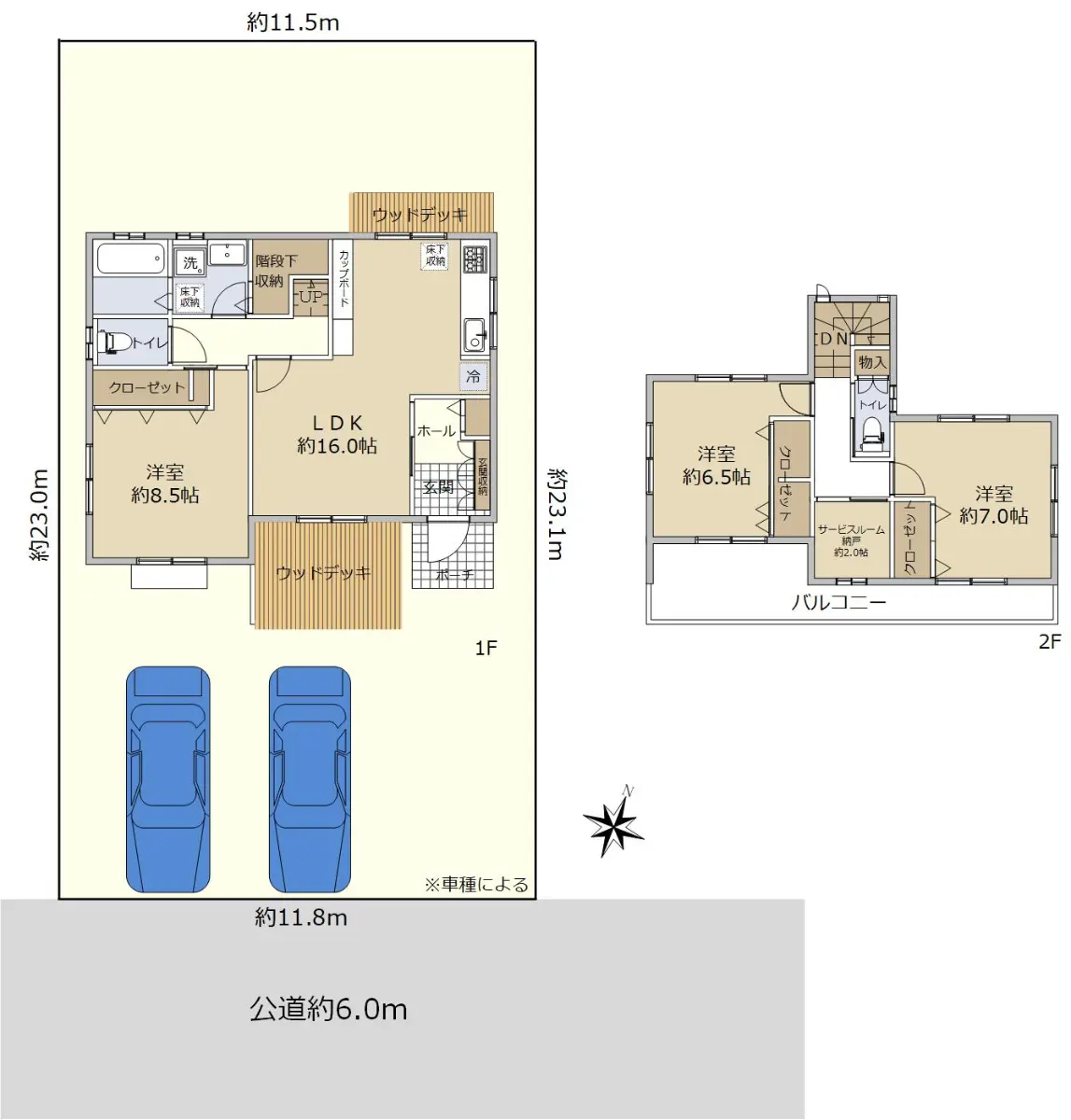
□3SLDK
□敷地面積:264.40㎡ (79.98㎡)
□建物

近期網站遭惡意攻擊,基於安全考量
目前僅接受會員查詢物件詳細資料
類型 一戶建
物件編號 1100885
名稱 八王子市めじろ台4丁目戸建
價格 8,880万円 > 8,380万円
物件現況 空家
管理費等 0円
修繕積立金 0円
所在地 東京都八王子市めじろ台4丁目
交通 京王高尾線めじろ台 (步行 8 分)
格局 3LDK
房號 --
總樓層 2階建 
屋齡 2021 年 (築 5 年)
面積 99.36㎡
約 30.06 坪
約 1,069.51 平方英呎
平米單價 日幣:89.37万円
台幣:17.70萬
港幣:4.40萬
坪單價 日幣:295.44万円
台幣:58.51萬
港幣:14.55萬
平方英呎 日幣:8.30万円
台幣:1.64萬
港幣:0.41萬
總戶數 1
方位 --
建築構造 木造
土地權利 所有権
用途地域 第1種低層住居専用地域
土地面積 264.40㎡
都市計畫 市街化区域
備註 2021年12月築、クリーニング済の空家の物件でございます。
日々の生活に役立つ設備が豊富で、家事動線に優れる間取りとなっております。
物件から見える眺望と陽当たりの良さもぜひ一度現地でご覧ください!

-不動産の購入をご検討中のお客様へ-
物件のご検討については、写真や図面だけではなく現地を見ていただく事をお勧めします。
現地をご覧頂くことにより、周辺環境や室内の状況等を確認いただけるだけでなく、
ご案内する担当者よりプロの目から見た長所・短所等を詳しくご説明差し上げる事もできます。
興味をお持ちのお客様は是非お問い合わせください。

情報公開日 2026年2月3日
目前狀態 空家
合約狀態 仲介
個人情報蒐集前告知
JP-Home.com 日本房屋網為上益國際有限公司經營管理,為了確保消費者之個人資料、隱私及消費者權益之保護,於交易過程中將使用消費者之個人資料,謹依個人資料保護法第 8 條規定,蒐集個人資料除用於本公司之會員管理、客戶管理之檢索查詢等功能外,本公司將利用個人電話號碼、LINE、Email 資料進行行銷,如有侵害到個人權益,請告知請求刪除會員資料。