物件搜尋:


東京23区 大田区(大田区羽田5丁目一棟マンション)

專家的建議


■京急空港線『天空橋』駅徒歩3分、『大鳥居』駅徒歩6分

■閑静な住宅地

■南・東角部屋にて陽当り・通風良好
~ライフインフォメーション~
・フジスーパー羽田店まで約315m(徒歩4分)
・ファミリーマート羽田5丁目店まで約300m(徒歩4分)
・セブンイレブン大田区羽田店まで約430m(徒歩6分)
・羽田5丁目児童公園まで約100m(徒歩2分)

近期網站遭惡意攻擊,基於安全考量
目前僅接受會員查詢物件詳細資料
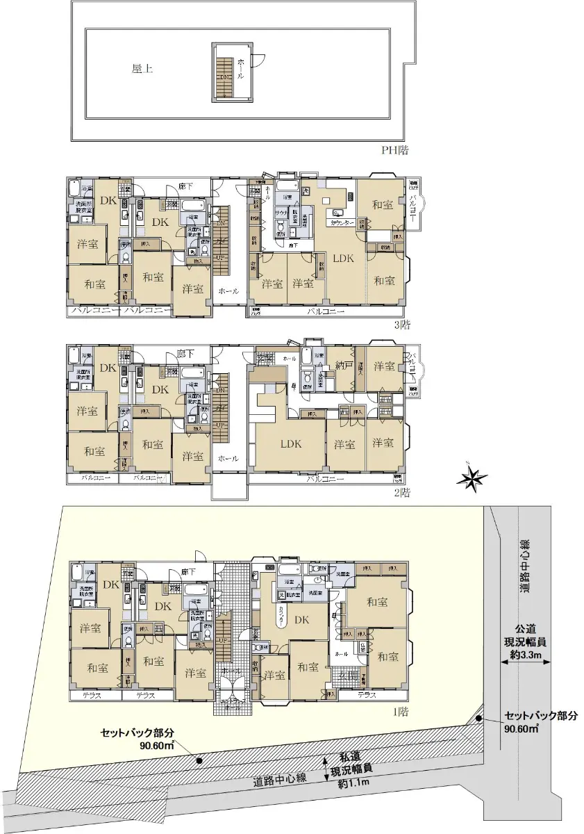
類型 公寓
物件編號 1101374
名稱 大田区羽田5丁目一棟マンション
價格 39,000万円
物件現況 出租中
管理費等 0円
修繕積立金 0円
可月出租 1,070,000円
投報率 3.29%
所在地 東京都大田区羽田5丁目
交通 京急空港線天空橋 (步行 3 分)
房號 --
總樓層 3階建 
屋齡 1989 年 (築 37 年)
面積 588.57㎡
約 178.04 坪
約 6,335.37 平方英呎
平米單價 日幣:66.26万円
台幣:13.49萬
港幣:3.34萬
坪單價 日幣:219.05万円
台幣:44.60萬
港幣:11.05萬
平方英呎 日幣:6.16万円
台幣:1.25萬
港幣:0.31萬
總戶數 9
方位 --
建築構造 鉄骨造
土地權利 所有権
用途地域 第1種住居地域
土地面積 585.53㎡
都市計畫 市街化区域
備註 この度は、当ページにアクセス頂き、誠にありがとうございます。
住友不動産ステップの大室と申します。

本物件は京急空港線『天空橋』駅徒歩3分、『大鳥居』駅徒歩6分と利便性の良い賃貸マンションです。物件に関するご質問等ございましたら、お気軽にお申し付けください。また、現地ご見学やその他ご不明な点についてもお気軽にお問合せくださいますようお願い申し上げます。
情報公開日 2026年2月9日
目前狀態 賃貸中
合約狀態 仲介
個人情報蒐集前告知
JP-Home.com 日本房屋網為上益國際有限公司經營管理,為了確保消費者之個人資料、隱私及消費者權益之保護,於交易過程中將使用消費者之個人資料,謹依個人資料保護法第 8 條規定,蒐集個人資料除用於本公司之會員管理、客戶管理之檢索查詢等功能外,本公司將利用個人電話號碼、LINE、Email 資料進行行銷,如有侵害到個人權益,請告知請求刪除會員資料。