物件搜尋:


京都府 京都市西京区(京都市西京区大枝北沓掛町五丁目戸建)

專家的建議


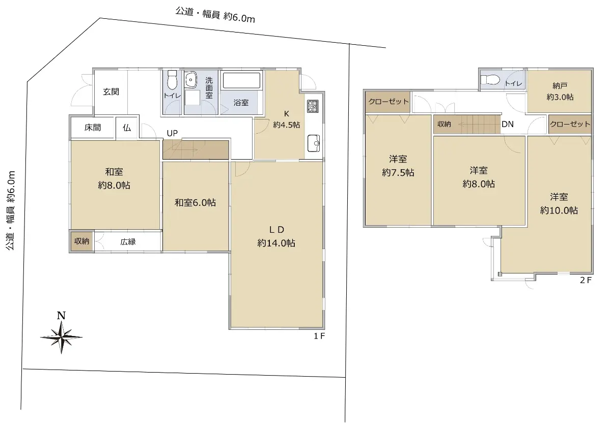
◎二方道路(北・西)
◎土地:62.29坪
◎建物:46.40坪
◎間取:5LDK+納戸
◎前面道路幅員約6.0m・公道
◎閑静な住宅地

◆◇◆生活関連周辺施設◆◇◆
・ドラッグユタカ桂坂店まで約430m
・ファミリーマート西京桂坂店まで約460m
・デイリーカナートイズミヤ桂坂店まで約350m
・石田医院まで約350m
・京都桂坂郵便局まで約330m
・京都中央信

近期網站遭惡意攻擊,基於安全考量
目前僅接受會員查詢物件詳細資料
類型 一戶建
物件編號 1101556
名稱 京都市西京区大枝北沓掛町五丁目戸建
價格 3,500万円
物件現況 空家
管理費等 0円
修繕積立金 0円
所在地 京都府京都市西京区大枝北沓掛町5丁目
交通 阪急京都線桂 (步行 11 分)
格局 5SLDK
房號 --
總樓層 2階建 
屋齡 1987 年 (築 39 年)
面積 153.42㎡
約 46.41 坪
約 1,651.41 平方英呎
平米單價 日幣:22.81万円
台幣:4.65萬
港幣:1.15萬
坪單價 日幣:75.42万円
台幣:15.36萬
港幣:3.80萬
平方英呎 日幣:2.12万円
台幣:0.43萬
港幣:0.11萬
總戶數 1
方位 --
建築構造 木造
土地權利 所有権
用途地域 第1種低層住居専用地域
土地面積 205.92㎡
都市計畫 市街化区域
備註 桂坂は金融機関や買物施設、教育施設、生活関連施設が分譲地内にございます。
桂坂の町並みは、区画の整った緑豊かな町並みです。
散策をしてみると、桂坂に住まう喜びを感じていただけるかと思います。

【桂坂】は、担当/ミヨシがご案内いたします。

物件に関するお問合せやご質問等は、担当のミヨシまでお申し付けください。
お待ちしております!

住友不動産ステップ株式会社 桂営業センター
情報公開日 2026年2月10日
目前狀態 空家
合約狀態 仲介
個人情報蒐集前告知
JP-Home.com 日本房屋網為上益國際有限公司經營管理,為了確保消費者之個人資料、隱私及消費者權益之保護,於交易過程中將使用消費者之個人資料,謹依個人資料保護法第 8 條規定,蒐集個人資料除用於本公司之會員管理、客戶管理之檢索查詢等功能外,本公司將利用個人電話號碼、LINE、Email 資料進行行銷,如有侵害到個人權益,請告知請求刪除會員資料。