物件搜尋:


東京23区 葛飾区(葛飾区新宿2丁目戸建)

專家的建議


■土地面積:85.95㎡(約25.99坪)
■延床面積:92.23㎡(約27.89坪)
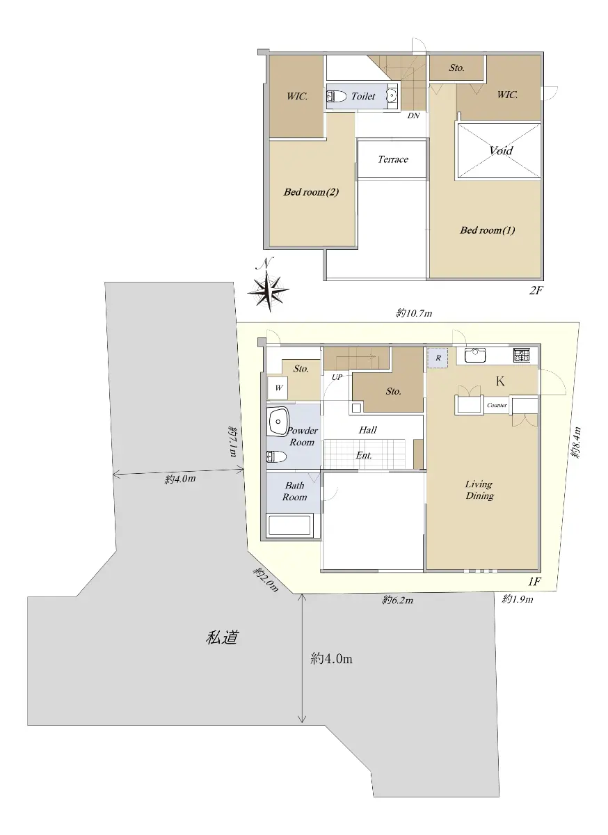
■間取り:2LDK
■西・南面道路に接する角地
■各居室にウォークインクローゼット有り
■玄関前に中庭スペース有り
■各階トイレ設置
■小・中学校が徒歩10分圏内 
※詳細は下記ライフインフォメーションを参照。
・・・・・・・・・・・・・・・・・・・・・・・・・・・・・・・・・・・・・・・・・・・・・・・・・・・・~ライ

近期網站遭惡意攻擊,基於安全考量
目前僅接受會員查詢物件詳細資料
類型 一戶建
物件編號 1101847
名稱 葛飾区新宿2丁目戸建
價格 5,200万円 > 4,700万円
物件現況 居住中
管理費等 0円
修繕積立金 0円
所在地 東京都葛飾区新宿2丁目
交通 常磐線(各駅)亀有 (步行 16 分)
格局 2LDK
房號 --
總樓層 2階建 
屋齡 2003 年 (築 23 年)
面積 92.23㎡
約 27.90 坪
約 992.76 平方英呎
平米單價 日幣:56.38万円
台幣:11.28萬
港幣:2.77萬
坪單價 日幣:186.38万円
台幣:37.28萬
港幣:9.14萬
平方英呎 日幣:5.24万円
台幣:1.05萬
港幣:0.26萬
總戶數 1
方位 --
建築構造 木造
土地權利 所有権
用途地域 第1種住居地域
土地面積 85.95㎡
都市計畫 市街化区域
備註 この度は「葛飾区新宿2丁目戸建」をご覧いただき、ありがとうございます!

本物件は常磐線「亀有」駅まで徒歩16分の位置に存する、2LDKの戸建です。
扉を開けるとすぐに、中庭スペースが広がるつくりになっており、
プライバシーを確保しつつも心休まる空間が生まれます。
また、リビングから2階東側洋室にかけて吹抜の間取りですので、開放感を感じられます。
そのほか、西・南面道路に接する角地のため日当たり良好です。

文章では説明しきれない魅力がたくさんございますので、
ぜひ一度現地をご内覧くださいませ。
情報公開日 2026年2月13日
目前狀態 居住中
合約狀態 仲介
個人情報蒐集前告知
JP-Home.com 日本房屋網為上益國際有限公司經營管理,為了確保消費者之個人資料、隱私及消費者權益之保護,於交易過程中將使用消費者之個人資料,謹依個人資料保護法第 8 條規定,蒐集個人資料除用於本公司之會員管理、客戶管理之檢索查詢等功能外,本公司將利用個人電話號碼、LINE、Email 資料進行行銷,如有侵害到個人權益,請告知請求刪除會員資料。