物件搜尋:


東京23区 新宿区(新宿区築地町戸建)

專家的建議


●アクセス

東京地下鉄東西線「神楽坂」駅まで徒歩4分
東京地下鉄有楽町線「江戸川橋」駅まで徒歩7分
東京都大江戸線「牛込神楽坂」駅まで徒歩10分


●土地情報

・土地面積 66.19㎡(約20.02坪)
・他に私道負担 12.99㎡あり
・用途地域 準工業地域
 建蔽率 60%、容積率 240%
 ※容積率は前面道路幅員制限による
・閑静な住宅街

近期網站遭惡意攻擊,基於安全考量
目前僅接受會員查詢物件詳細資料
類型 一戶建
物件編號 1101970
名稱 新宿区築地町戸建
價格 20,800万円
物件現況 居住中
管理費等 0円
修繕積立金 0円
所在地 東京都新宿区築地町
交通 東京メトロ東西線神楽坂 (步行 4 分)
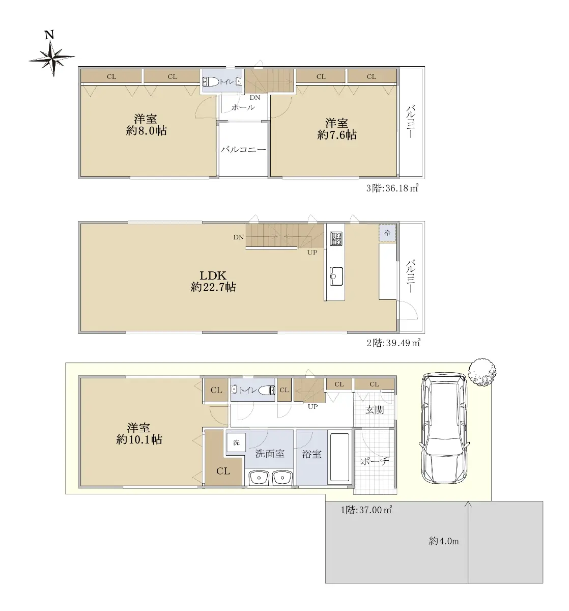
格局 3LDK
房號 --
總樓層 3階建 
屋齡 2006 年 (築 20 年)
面積 112.67㎡
約 34.08 坪
約 1,212.78 平方英呎
平米單價 日幣:184.61万円
台幣:37.59萬
港幣:9.31萬
坪單價 日幣:610.28万円
台幣:124.26萬
港幣:30.78萬
平方英呎 日幣:17.15万円
台幣:3.49萬
港幣:0.87萬
總戶數 1
方位 --
建築構造 木造
土地權利 所有権
用途地域 準工業地域
土地面積 66.19㎡
都市計畫 市街化区域
備註 本物件の特徴は、何と言っても「神楽坂駅徒歩4分」という好立地でありながら、建物面積110㎡を超えるゆとりの空間を確保しております。

2階のLDK約22.7帖は開放感があり、ご友人を招いてのホームパーティーや、お子様がのびのびと遊べる広さがございます。また、全ての居室が約7.5帖以上という設計は、昨今の新築戸建ではなかなか無い仕様でございます。

現在居住中ではございますが、事前の日程調整によりご内覧も可能です。
神楽坂エリアで「広さ」と「利便性」の両立を諦めたくないお客様に、自信を持っておすすめいたします。
ぜひ一度、このゆとりをご体感ください。

担当「染谷」までお気軽にご連絡くださいませ。
フリーコール:0120-432-882
情報公開日 2026年2月14日
目前狀態 居住中
合約狀態 仲介
個人情報蒐集前告知
JP-Home.com 日本房屋網為上益國際有限公司經營管理,為了確保消費者之個人資料、隱私及消費者權益之保護,於交易過程中將使用消費者之個人資料,謹依個人資料保護法第 8 條規定,蒐集個人資料除用於本公司之會員管理、客戶管理之檢索查詢等功能外,本公司將利用個人電話號碼、LINE、Email 資料進行行銷,如有侵害到個人權益,請告知請求刪除會員資料。


  • 宜家國際地產(統一編號:42647425)
    本網站所刊登之不動產物件均已合法授權刊登
    本網站內容享有著作權,禁止侵害,違者必究
    Copyright © 2011 - 2026 All Rights Reserved