物件搜尋:


東京都下 狛江市(狛江市岩戸南2丁目戸建)

專家的建議


<Sales Point>
□南側公道に面す戸建につき陽当たり・通風良好
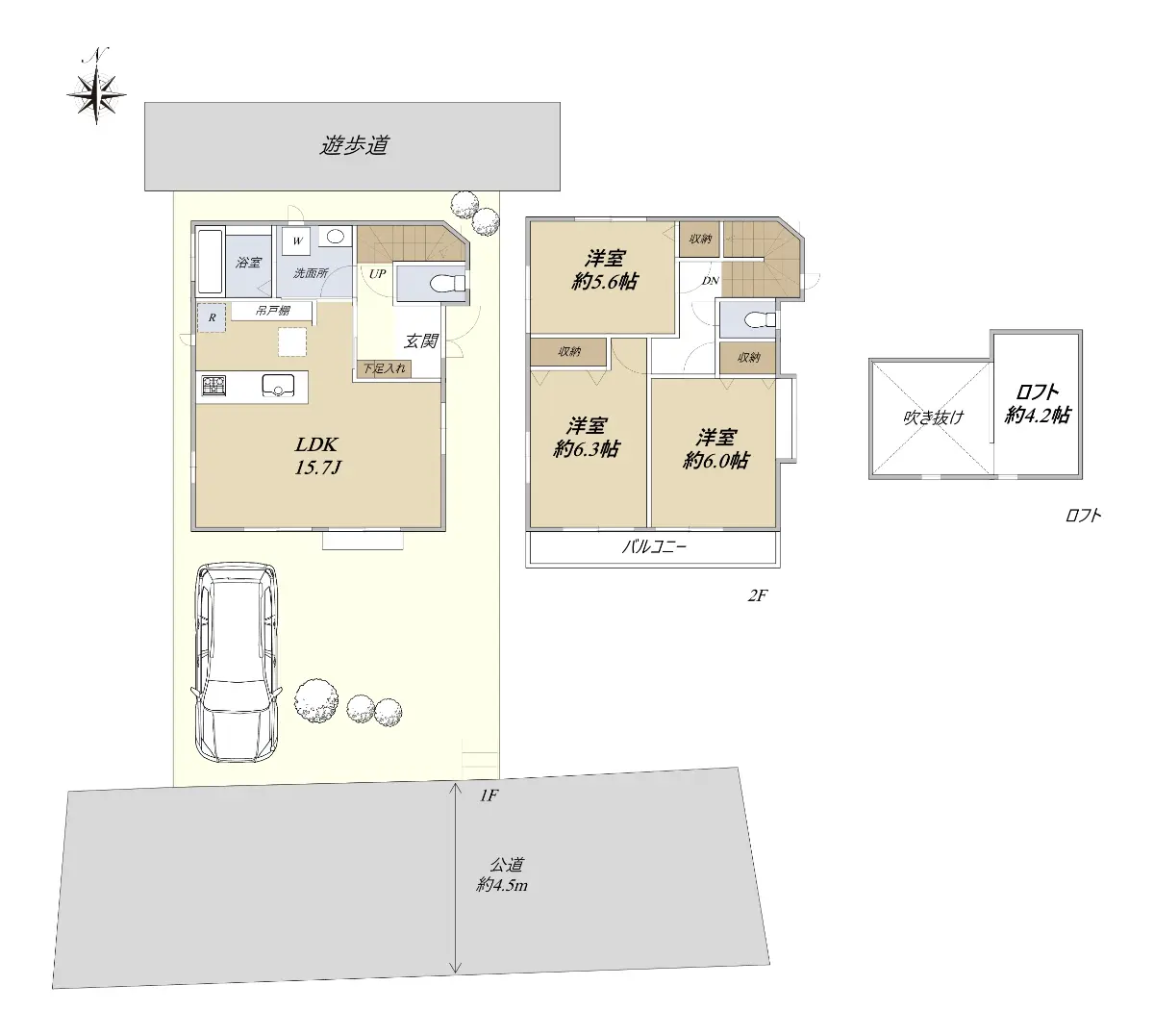
□LDK約15.7帖
□カースペースあり(※車種による)
□浴室換気乾燥暖房機あり
□各階にトイレあり
□2階洋室約6.3帖部分にロフトあり
□各洋室に収納あり<Life Information>
■狛江みずほ幼稚園 約580m(徒歩8分)
■狛江市立狛江第三小学校 約120m(徒歩2分)
■狛江市立狛江第二中学校 約500

近期網站遭惡意攻擊,基於安全考量
目前僅接受會員查詢物件詳細資料
類型 一戶建
物件編號 1102097
名稱 狛江市岩戸南2丁目戸建
價格 6,280万円 > 5,980万円
物件現況 空家
管理費等 0円
修繕積立金 0円
所在地 東京都狛江市岩戸南2丁目
交通 小田急小田原線狛江 (步行 14 分)
格局 3LDK
房號 --
總樓層 2階建 
屋齡 2015 年 (築 11 年)
面積 81.66㎡
約 24.70 坪
約 878.99 平方英呎
平米單價 日幣:76.90万円
台幣:15.39萬
港幣:3.78萬
坪單價 日幣:254.23万円
台幣:50.89萬
港幣:12.48萬
平方英呎 日幣:7.14万円
台幣:1.43萬
港幣:0.35萬
總戶數 1
方位 --
建築構造 木造
土地權利 所有権
用途地域 第1種低層住居専用地域
土地面積 102.10㎡
都市計畫 市街化区域
備註 この度は『狛江市岩戸南2丁目戸建』のページをご覧いただき、誠に有難うございます。

小田急小田原線「狛江」駅から徒歩14分、「喜多見」駅徒歩16分に
立地しており二駅利用可となっています。
また南側公道に面す戸建につき陽当たり・通風良好です。  

現地をご覧頂くことで、周辺環境が明確にご理解頂けるとともに、
案内時に担当者から、プロの目で見た長所・短所を詳しくご説明差し上げることもできます。
資料請求・現地の内見希望等、お気軽にインターネット等からお問合せください。
皆様からのお問い合わせ心からお待ちしております。
情報公開日 2026年2月15日
目前狀態 空家
合約狀態 仲介
個人情報蒐集前告知
JP-Home.com 日本房屋網為上益國際有限公司經營管理,為了確保消費者之個人資料、隱私及消費者權益之保護,於交易過程中將使用消費者之個人資料,謹依個人資料保護法第 8 條規定,蒐集個人資料除用於本公司之會員管理、客戶管理之檢索查詢等功能外,本公司將利用個人電話號碼、LINE、Email 資料進行行銷,如有侵害到個人權益,請告知請求刪除會員資料。