物件搜尋:


神奈川県 横浜市中区(横浜シティタワー馬車道 )

專家的建議


■横浜市営地下鉄「関内」駅徒歩1分
■JR京浜東北・根岸線「関内」駅徒歩3分
■住友不動産株式会社旧分譲、清水建設株式会社施工
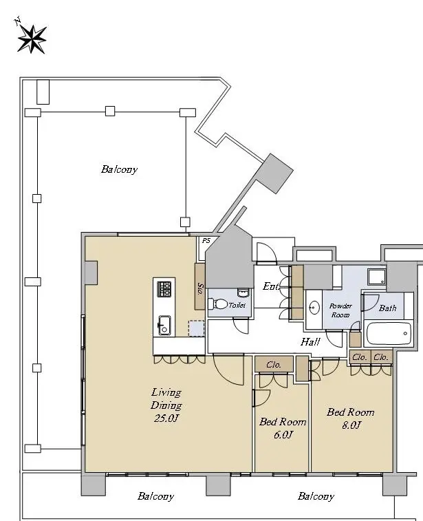
■22階部分、南西・北西角部屋 専有面積96.52㎡
■LDK約25.0帖・リビング床暖房あります※LDK一部。
■現在賃貸中的為、オーナーチェンジで的販売となります。
賃料/月額/490000円、年額/5880000円 2026年1月12日現在
詳細は担当的安藤までお気軽にお問合せ下さい。

近期網站遭惡意攻擊,基於安全考量
目前僅接受會員查詢物件詳細資料
類型 大樓
物件編號 1102211
名稱 横浜シティタワー馬車道 
價格 19,000万円
物件現況 出租中
管理費等 25,090円
修繕積立金 29,290円
可月出租 490,000円
投報率 2.75%
所在地 神奈川県横浜市中区尾上町5丁目
交通 横浜市ブルーライン関内 (步行 1 分)
格局 2LDK
房號 --
總樓層 22階部分/23階建 
屋齡 2003 年 (築 23 年)
面積 96.52㎡
約 29.20 坪
約 1,038.94 平方英呎
平米單價 日幣:196.85万円
台幣:40.08萬
港幣:9.93萬
坪單價 日幣:650.75万円
台幣:132.50萬
港幣:32.82萬
平方英呎 日幣:18.29万円
台幣:3.72萬
港幣:0.92萬
總戶數 163
方位 南西/角部屋
建築構造 鉄骨鉄筋コンクリート造
土地權利 所有権
用途地域 -
管理形態 全部委託
管理公司 住友不動産建物サービス
管理人 日勤
建築公司 清水建設株式会社
土地面積 -
都市計畫 -
備註 高層階22階部分、南西・北西角部屋となります。
非分譲のお部屋となりまして、LDK約25.0帖あります。
南西側バルコニー23.40㎡、北西側ルーフバルコニー30.20㎡※月額/1170円かかります。
北西側ルーフバルコニーより、みなとみらいを望める眺望※季節・天候によります。
情報公開日 2026年2月16日
目前狀態 賃貸中
合約狀態 仲介
個人情報蒐集前告知
JP-Home.com 日本房屋網為上益國際有限公司經營管理,為了確保消費者之個人資料、隱私及消費者權益之保護,於交易過程中將使用消費者之個人資料,謹依個人資料保護法第 8 條規定,蒐集個人資料除用於本公司之會員管理、客戶管理之檢索查詢等功能外,本公司將利用個人電話號碼、LINE、Email 資料進行行銷,如有侵害到個人權益,請告知請求刪除會員資料。


  • 宜家國際地產(統一編號:42647425)
    本網站所刊登之不動產物件均已合法授權刊登
    本網站內容享有著作權,禁止侵害,違者必究
    Copyright © 2011 - 2026 All Rights Reserved