物件搜尋:


東京23区 杉並区(杉並区高井戸東2丁目戸建)

專家的建議


≪2駅2路線 利用可≫
・井的頭線「高井戸」駅 徒歩8分
・京王線「八幡山」駅 徒歩18分

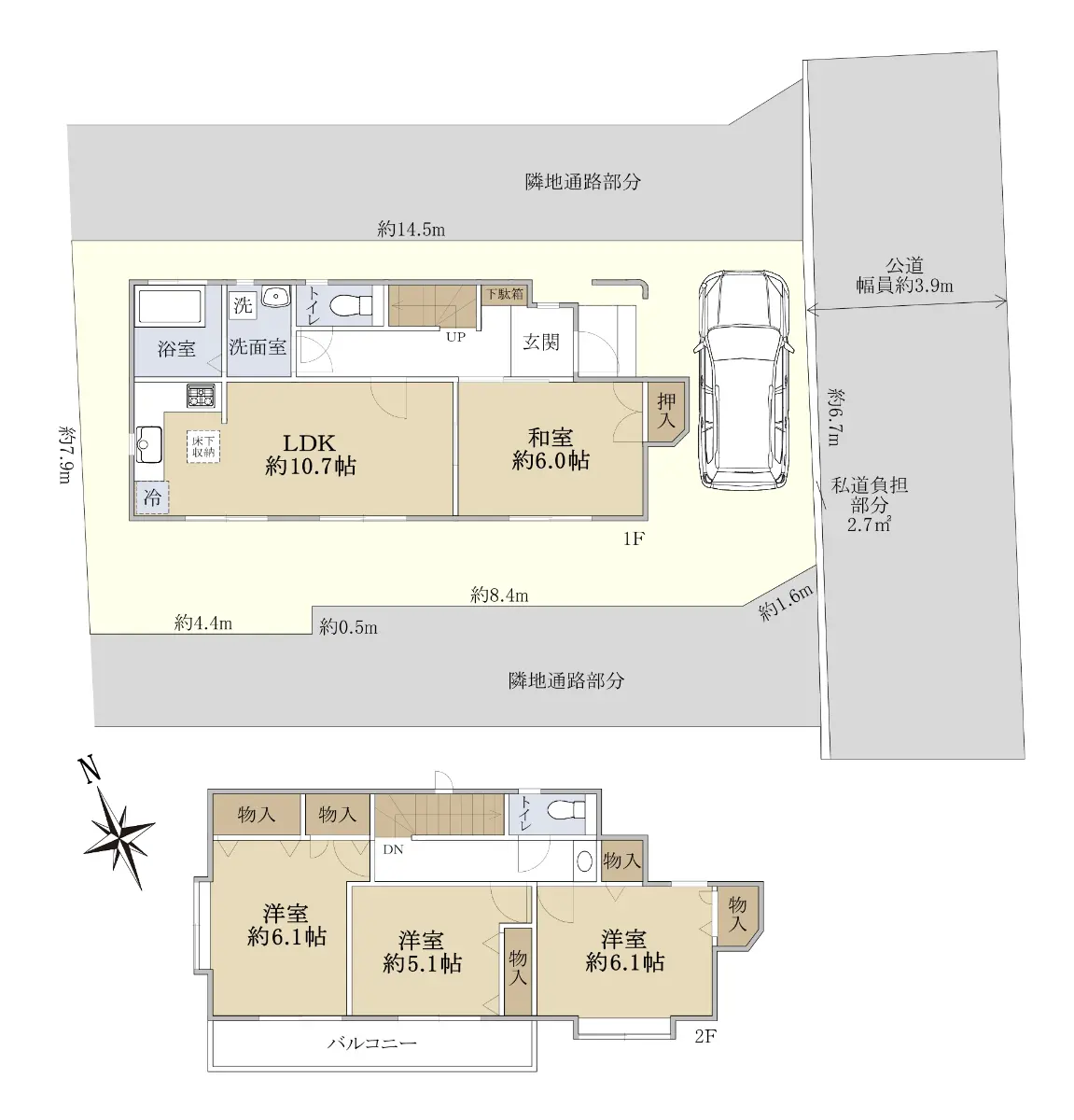
新築時、合計6区画が同時期に分譲されており、整然とした街並みです。

≪ 全室 南西向き ≫

【 日当たり的良さ・隣家と的距離感 】を
        是非、ご体感いただきたいお宅です!


■□ 南東側公道(杉並区道) / 南西側・北西側は隣地通路


近期網站遭惡意攻擊,基於安全考量
目前僅接受會員查詢物件詳細資料
類型 一戶建
物件編號 1102688
名稱 杉並区高井戸東2丁目戸建
價格 7,480万円
物件現況 居住中
管理費等 0円
修繕積立金 0円
所在地 東京都杉並区高井戸東2丁目
交通 京王井の頭線高井戸 (步行 7 分)
格局 4LDK
房號 --
總樓層 2階建 
屋齡 2002 年 (築 24 年)
面積 87.26㎡
約 26.40 坪
約 939.27 平方英呎
平米單價 日幣:85.72万円
台幣:17.45萬
港幣:4.32萬
坪單價 日幣:283.37万円
台幣:57.70萬
港幣:14.29萬
平方英呎 日幣:7.96万円
台幣:1.62萬
港幣:0.40萬
總戶數 1
方位 --
建築構造 木造
土地權利 所有権
用途地域 第1種低層住居専用地域
土地面積 109.63㎡
都市計畫 市街化区域
備註 日当たり重視の方に是非、ご覧いただきたい物件です!

◇ 建物 / 2002年1月築 ◇

 築後24年が経過しておりますが、
 丁寧に、きれいにお使いになっていると思います。


ご検討にあたっては、是非一度現地をご確認頂くことをお勧めいたします。
詳細や内見希望等ございましたら、担当までお気軽にご連絡ください。
情報公開日 2026年2月20日
目前狀態 居住中
合約狀態 仲介
個人情報蒐集前告知
JP-Home.com 日本房屋網為上益國際有限公司經營管理,為了確保消費者之個人資料、隱私及消費者權益之保護,於交易過程中將使用消費者之個人資料,謹依個人資料保護法第 8 條規定,蒐集個人資料除用於本公司之會員管理、客戶管理之檢索查詢等功能外,本公司將利用個人電話號碼、LINE、Email 資料進行行銷,如有侵害到個人權益,請告知請求刪除會員資料。


  • 宜家國際地產(統一編號:42647425)
    本網站所刊登之不動產物件均已合法授權刊登
    本網站內容享有著作權,禁止侵害,違者必究
    Copyright © 2011 - 2026 All Rights Reserved