物件搜尋:


京都府 京都市西京区(京都市西京区御陵大枝山町4丁目 戸建)

專家的建議


【京都市西京区御陵大枝山町4丁目 戸建】

┏┓ 本物件おすすめポイント
┗□━━━━━━━━━━━━

◇建物状況調査実施済!!(2026年3月)

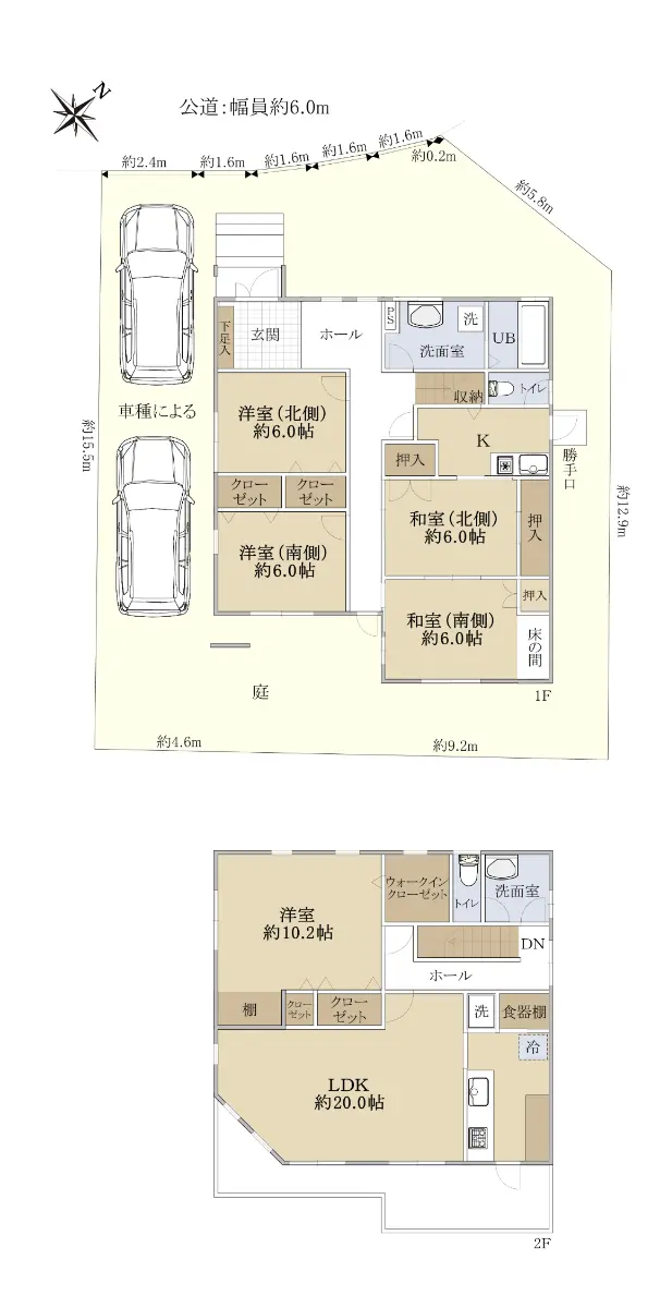
◇緑豊かな閑静な住宅地『桂坂』に所在

◇土地面積213.95㎡(約64.71坪)

◇駐車スペース2台分有(車種による)
※カーポートもございます。

◇5LDK+K的間取り

◇1階・

近期網站遭惡意攻擊,基於安全考量
目前僅接受會員查詢物件詳細資料
類型 一戶建
物件編號 1102782
名稱 京都市西京区御陵大枝山町4丁目 戸建
價格 4,480万円
物件現況 居住中
管理費等 0円
修繕積立金 0円
所在地 京都府京都市西京区御陵大枝山町4丁目
交通 阪急京都線桂 (步行 11 分)
格局 5LDK
房號 --
總樓層 2階建 
屋齡 1999 年 (築 27 年)
面積 155.68㎡
約 47.09 坪
約 1,675.74 平方英呎
平米單價 日幣:28.78万円
台幣:5.70萬
港幣:1.42萬
坪單價 日幣:95.13万円
台幣:18.84萬
港幣:4.69萬
平方英呎 日幣:2.67万円
台幣:0.53萬
港幣:0.13萬
總戶數 1
方位 --
建築構造 木造
土地權利 所有権
用途地域 第1種低層住居専用地域
土地面積 213.95㎡
都市計畫 市街化区域
備註 この度は、『京都市西京区御陵大枝山町4丁目 戸建』をご覧いただき、誠にありがとうございます。

本物件は、桂駅までバス18分、最寄バス停「大枝山町東」徒歩2分の立地にございます。

区画の整った緑豊かな住宅街・『桂坂』に位置し、落ち着いた住環境の中でゆったりとお過ごしいただけます。
小・中学校も徒歩10分圏内にあり、子育て世帯にも安心の立地です。

土地面積約64.71坪、建物延床面積約47.09坪のゆとりある5LDK+K。
カーポート2台分(車種による)を備え、来客用やセカンドカーにも対応可能です。

情報公開日 2026年2月21日
目前狀態 居住中
合約狀態 仲介
個人情報蒐集前告知
JP-Home.com 日本房屋網為上益國際有限公司經營管理,為了確保消費者之個人資料、隱私及消費者權益之保護,於交易過程中將使用消費者之個人資料,謹依個人資料保護法第 8 條規定,蒐集個人資料除用於本公司之會員管理、客戶管理之檢索查詢等功能外,本公司將利用個人電話號碼、LINE、Email 資料進行行銷,如有侵害到個人權益,請告知請求刪除會員資料。