物件搜尋:


京都府 京都市北区(京都市北区上賀茂中大路町戸建)

專家的建議


●建物状況調査実施済み(インスペクション)
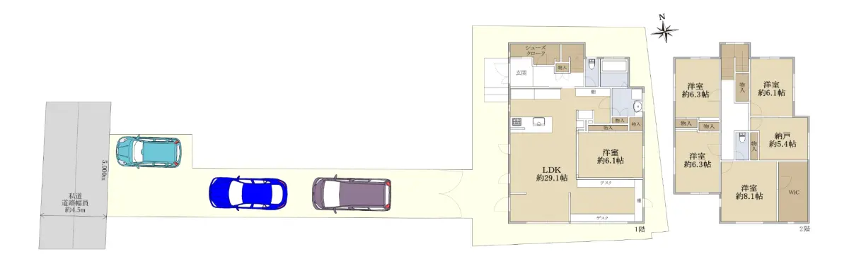
●5SLDK的間取り 
●令和3年3月建築
●LDK約29.1帖
●駐車3台可能(車種による)
●各居室 Low-Eペアガラス採用
●ユニットバス1616サイズ
●浴室に窓有

◎周辺環境
スーパーフレスコ御薗橋店まで約600m
生鮮館なかむら上賀茂店まで約700m
コープにしがもまで約700m
ローソンストア100 上賀茂

近期網站遭惡意攻擊,基於安全考量
目前僅接受會員查詢物件詳細資料
類型 一戶建
物件編號 1103473
名稱 京都市北区上賀茂中大路町戸建
價格 16,480万円
物件現況 居住中
管理費等 0円
修繕積立金 0円
所在地 京都府京都市北区上賀茂中大路町
交通 京都市烏丸線北山 (步行 20 分)
格局 5SLDK
房號 --
總樓層 2階建 
屋齡 2021 年 (築 5 年)
面積 159.81㎡
約 48.34 坪
約 1,720.19 平方英呎
平米單價 日幣:103.12万円
台幣:20.51萬
港幣:5.06萬
坪單價 日幣:340.90万円
台幣:67.79萬
港幣:16.72萬
平方英呎 日幣:9.58万円
台幣:1.91萬
港幣:0.47萬
總戶數 1
方位 --
建築構造 木造
土地權利 所有権
用途地域 第1種低層住居専用地域
土地面積 222.07㎡
都市計畫 市街化区域
備註 この度は上賀茂中大路町の物件詳細ページをご覧頂きまして
誠にありがとうございます。

周辺は閑静な住宅街が広がっており、
本物件は西向きに接道しております。
前面道路は北行きの一方通行の為、車通りも少なく
落ち着いた雰囲気です。

間口は約5.0mでございまして
手前側は土間を石畳にて施工されておりますので
情報公開日 2026年2月27日
目前狀態 居住中
合約狀態 仲介
個人情報蒐集前告知
JP-Home.com 日本房屋網為上益國際有限公司經營管理,為了確保消費者之個人資料、隱私及消費者權益之保護,於交易過程中將使用消費者之個人資料,謹依個人資料保護法第 8 條規定,蒐集個人資料除用於本公司之會員管理、客戶管理之檢索查詢等功能外,本公司將利用個人電話號碼、LINE、Email 資料進行行銷,如有侵害到個人權益,請告知請求刪除會員資料。