物件搜尋:


東京23区 大田区(大田区上池台2丁目戸建)

專家的建議


≪Access≫

〇東急池上線「長原」駅 徒歩8分
〇東急池上線「洗足池」駅 徒歩9分

≪Sales Point≫

〇東急池上線「長原」駅徒歩8分
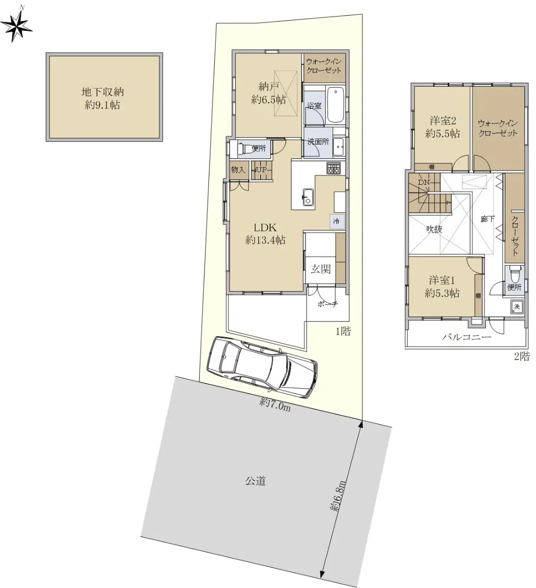
〇建物面積93.67㎡ 
 1階 50.30㎡ 2階 43.37㎡
〇敷地面積102.46㎡
〇用途地域:第一種低層住居専用地域
〇(株)泊ビルド施工的注文住宅
〇2006年2月新築
≪Life infor

近期網站遭惡意攻擊,基於安全考量
目前僅接受會員查詢物件詳細資料
類型 一戶建
物件編號 1103630
名稱 大田区上池台2丁目戸建
價格 9,380万円
物件現況 空家
管理費等 0円
修繕積立金 0円
所在地 東京都大田区上池台2丁目
交通 東急池上線長原 (步行 8 分)
格局 2SLDK
房號 --
總樓層 2階建 
屋齡 2006 年 (築 20 年)
面積 93.67㎡
約 28.34 坪
約 1,008.26 平方英呎
平米單價 日幣:100.14万円
台幣:20.10萬
港幣:5.02萬
坪單價 日幣:331.04万円
台幣:66.44萬
港幣:16.61萬
平方英呎 日幣:9.30万円
台幣:1.87萬
港幣:0.47萬
總戶數 1
方位 --
建築構造 木造
土地權利 所有権
用途地域 第1種低層住居専用地域
土地面積 102.46㎡
都市計畫 市街化区域
備註 この度は、大田区上池台2丁目戸建ての詳細ページをご覧いただきまして、誠にありがとうございます。

東急池上線「長原」駅徒歩8分に存しており、日々の買い物やお出かけにも便利な立地となっております。
詳しくは担当者までお問合せください。

物件のご検討については、ぜひ写真や図面だけではなく、現地をご覧になることをおすすめしております。
現地をご覧頂くことにより周辺環境や物件の仕様等を確認いただくだけでなく、ご案内する担当者より、プロの目から見た長所・短所等を詳しくご説明差し上げる事もできますので、ご興味をお持ちの方は、お気軽に下記フリーコールまでご一報下さいませ。

フリーコール:0120-492-374
皆さまからのお問い合わせを心よりお待ちしております。
情報公開日 2026年2月28日
目前狀態 空家
合約狀態 仲介
個人情報蒐集前告知
JP-Home.com 日本房屋網為上益國際有限公司經營管理,為了確保消費者之個人資料、隱私及消費者權益之保護,於交易過程中將使用消費者之個人資料,謹依個人資料保護法第 8 條規定,蒐集個人資料除用於本公司之會員管理、客戶管理之檢索查詢等功能外,本公司將利用個人電話號碼、LINE、Email 資料進行行銷,如有侵害到個人權益,請告知請求刪除會員資料。