物件搜尋:


東京都下 町田市(町田市広袴町戸建)

專家的建議


◎アクセス:バス停「東平」徒歩5分 バス停「東平」から小田急線「鶴川」駅バス乗車14分

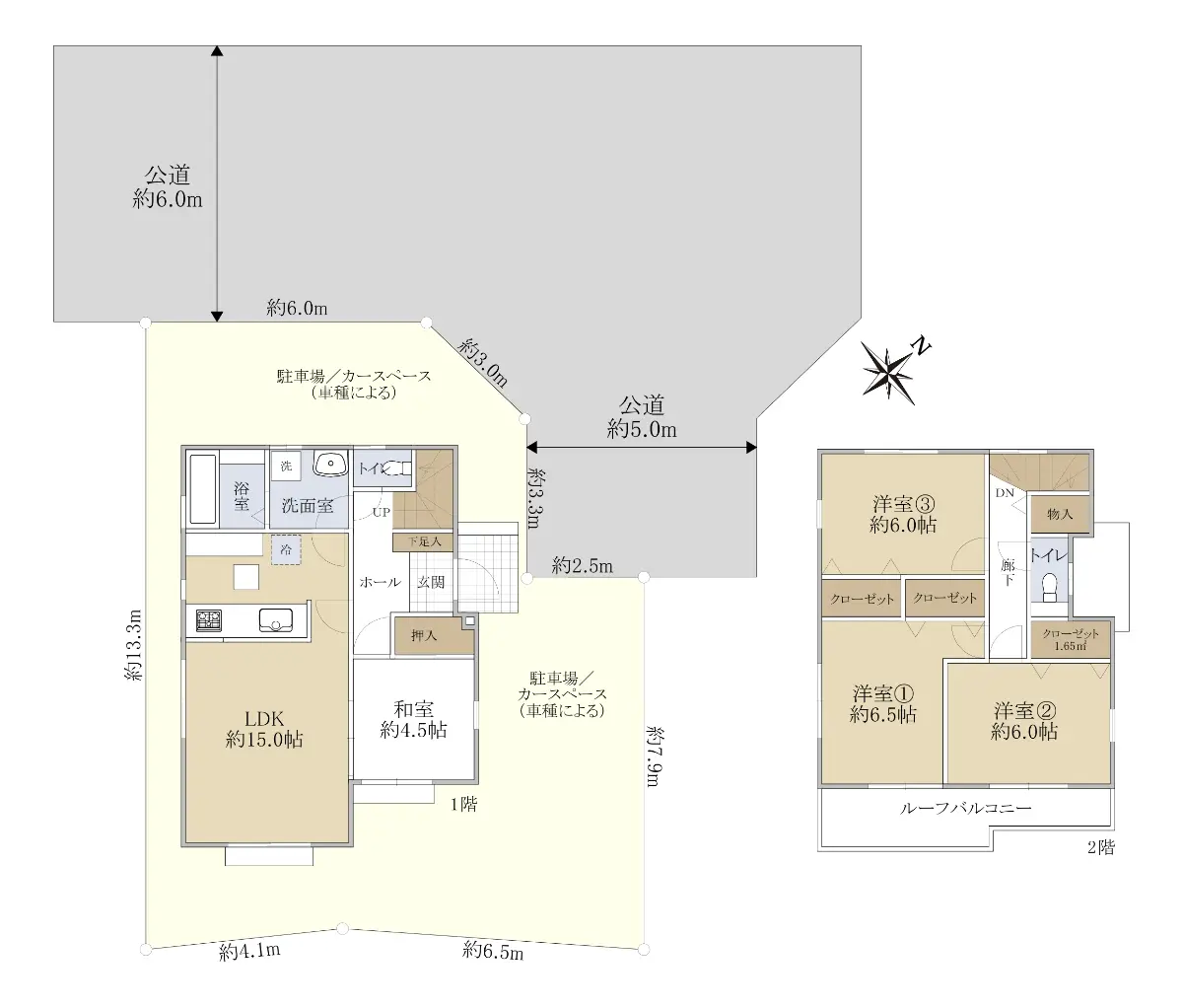
■土地面積 125.15㎡
■建物面積 93.56㎡
■間取り 4LDK
■築年月 2010年06月
■構造 木造2階建て

■駐車場/カースペース(車種による)
■南東向きバルコニー


近期網站遭惡意攻擊,基於安全考量
目前僅接受會員查詢物件詳細資料
類型 一戶建
物件編號 1103645
名稱 町田市広袴町戸建
價格 3,680万円
物件現況 空家
管理費等 0円
修繕積立金 0円
所在地 東京都町田市広袴町
交通 小田急小田原線鶴川 (步行 25 分)
格局 4LDK
房號 --
總樓層 2階建 
屋齡 2010 年 (築 16 年)
面積 93.56㎡
約 28.30 坪
約 1,007.08 平方英呎
平米單價 日幣:39.33万円
台幣:7.89萬
港幣:1.97萬
坪單價 日幣:130.03万円
台幣:26.10萬
港幣:6.52萬
平方英呎 日幣:3.65万円
台幣:0.73萬
港幣:0.18萬
總戶數 1
方位 --
建築構造 木造
土地權利 所有権
用途地域 第1種低層住居専用地域
土地面積 125.15㎡
都市計畫 市街化区域
備註 ***不動産の購入を検討中のお客様へ****
物件探しの基本は「物件を実際に見て頂くこと」にあります。
写真や図面だけではなく、実際に現地を見て頂く事をお勧めいたします。
現地を見て頂くことで、周辺環境や物件の状態が明確にご理解頂けるとともに、
プロの目から見た物件の長所・短所、購入の際の注意点を詳しくご説明させて頂きます。
こちらの物件にご興味をお持ちのお客様は是非ともお問い合わせください。
心よりお待ちしております。
情報公開日 2026年2月28日
目前狀態 空家
合約狀態 仲介
個人情報蒐集前告知
JP-Home.com 日本房屋網為上益國際有限公司經營管理,為了確保消費者之個人資料、隱私及消費者權益之保護,於交易過程中將使用消費者之個人資料,謹依個人資料保護法第 8 條規定,蒐集個人資料除用於本公司之會員管理、客戶管理之檢索查詢等功能外,本公司將利用個人電話號碼、LINE、Email 資料進行行銷,如有侵害到個人權益,請告知請求刪除會員資料。


  • 宜家國際地產(統一編號:42647425)
    本網站所刊登之不動產物件均已合法授權刊登
    本網站內容享有著作權,禁止侵害,違者必究
    Copyright © 2011 - 2026 All Rights Reserved