物件搜尋:


東京23区 世田谷区(世田谷区三宿1丁目戸建)

專家的建議


2沿線以上利用可|南道路(南東・南西含む)|容積率100%以上|小学校まで徒歩10分以内|スーパーまで徒歩10分以内|コンビニまで徒歩5分以内|第一種住居地域|防火・準防火

近期網站遭惡意攻擊,基於安全考量
目前僅接受會員查詢物件詳細資料
類型 一戶建
物件編號 1104163
名稱 世田谷区三宿1丁目戸建
價格 11,560万円
物件現況 居住中
管理費等 0円
修繕積立金 0円
所在地 東京都世田谷区三宿1丁目
交通 東急田園都市線池尻大橋 (步行 11 分)
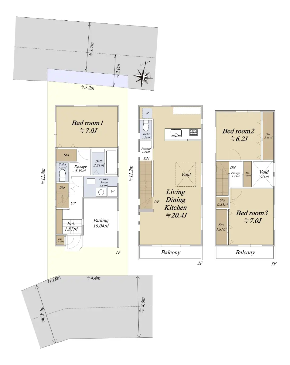
格局 3LDK
房號 --
總樓層 3階建 
屋齡 2012 年 (築 14 年)
面積 101.03㎡
約 30.56 坪
約 1,087.49 平方英呎
平米單價 日幣:114.42万円
台幣:22.99萬
港幣:5.67萬
坪單價 日幣:378.25万円
台幣:75.99萬
港幣:18.74萬
平方英呎 日幣:10.63万円
台幣:2.14萬
港幣:0.53萬
總戶數 1
方位 --
建築構造 木造
土地權利 所有権
用途地域 第1種住居地域
土地面積 69.52㎡
都市計畫 市街化区域
備註 三宿エリアに位置する、南側・北側の両面道路に接した3階建て住宅です。二方道路に面しているため、採光・通風の確保がしやすい配置となっています。

LDKは約20.4帖。床暖房付きで、足元から室内をやわらかく暖めます。2階上部には吹き抜けを設けており、視線が抜けることで実際の帖数以上の広がりを感じられる空間設計です。

尚、物件の購入のご検討については、
写真や図面だけでなくお客様ご自身の目で現地をご覧頂くことをお勧めします。
実際に現地をご覧頂くことで周辺環境等をご確認頂くだけでなく、
担当者より物件の長所・短所等もご説明させて頂きます。
お客様が購入してよかったと思って頂けるよう、全力でサポート致します。

情報公開日 2026年3月3日
目前狀態 居住中
合約狀態 仲介
個人情報蒐集前告知
JP-Home.com 日本房屋網為上益國際有限公司經營管理,為了確保消費者之個人資料、隱私及消費者權益之保護,於交易過程中將使用消費者之個人資料,謹依個人資料保護法第 8 條規定,蒐集個人資料除用於本公司之會員管理、客戶管理之檢索查詢等功能外,本公司將利用個人電話號碼、LINE、Email 資料進行行銷,如有侵害到個人權益,請告知請求刪除會員資料。