物件搜尋:


東京都下 あきる野市(あきる野市伊奈戸建)

專家的建議


【アクセス】
・JR五日市線「武蔵増戸」駅徒歩12分
【物件概要】
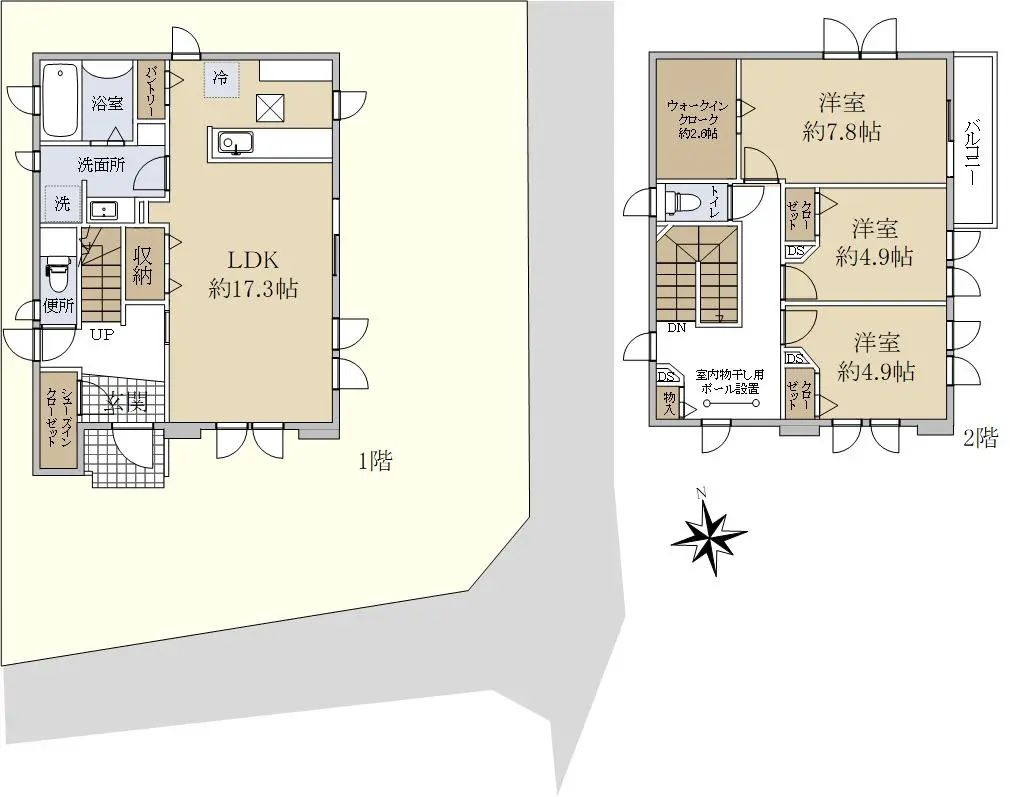
・間取り:3LDK
・築年月:2015年12月
◎駐車スペース2台可(車種による制限あり)
◎角地的ため、明るい陽光と心地よい風が舞い込む住まいです
◎たっぷり的収納スペースで住空間もスッキリ広々
◎全館空調 
◎オール電化
◎全窓外部樹脂被覆木製ペアガラスサッシ(全窓)
【周辺環境】
・あきる野市増戸小学校・

近期網站遭惡意攻擊,基於安全考量
目前僅接受會員查詢物件詳細資料
類型 一戶建
物件編號 1105712
名稱 あきる野市伊奈戸建
價格 3,080万円 > 2,980万円
物件現況 空家
管理費等 0円
修繕積立金 0円
所在地 東京都あきる野市伊奈
交通 五日市線武蔵増戸 (步行 12 分)
格局 3LDK
房號 --
總樓層 2階建 
屋齡 2015 年 (築 11 年)
面積 103.28㎡
約 31.24 坪
約 1,111.71 平方英呎
平米單價 日幣:29.82万円
台幣:5.90萬
港幣:1.47萬
坪單價 日幣:98.58万円
台幣:19.50萬
港幣:4.84萬
平方英呎 日幣:2.77万円
台幣:0.55萬
港幣:0.14萬
總戶數 1
方位 --
建築構造 木造
土地權利 所有権
用途地域 第1種低層住居専用地域
土地面積 149.00㎡
都市計畫 市街化区域
備註 この度は、【あきる野市伊奈戸建】のホームページを
ご覧いただきまして誠にありがとうございます。

ご内覧希望等ございましたら担当の「平野翔」までご連絡ください。

☆☆☆☆☆フリーコール☆☆☆☆☆
  ↓ ↓ ↓ ↓ ↓ ↓ ↓

  0120-301-451
情報公開日 2026年3月16日
目前狀態 空家
合約狀態 仲介
個人情報蒐集前告知
JP-Home.com 日本房屋網為上益國際有限公司經營管理,為了確保消費者之個人資料、隱私及消費者權益之保護,於交易過程中將使用消費者之個人資料,謹依個人資料保護法第 8 條規定,蒐集個人資料除用於本公司之會員管理、客戶管理之檢索查詢等功能外,本公司將利用個人電話號碼、LINE、Email 資料進行行銷,如有侵害到個人權益,請告知請求刪除會員資料。