物件搜尋:


東京都下 三鷹市(三鷹市井口5丁目戸建)

專家的建議


・JR中央線・西武多摩川線「武蔵境」駅 徒歩18分
・JR中央線「東小金井」駅 徒歩18分
・西武多摩川線「新小金井」駅 徒歩14分

【物件概要】
◎土地面積:71.19㎡
◎建物面積:57.74㎡
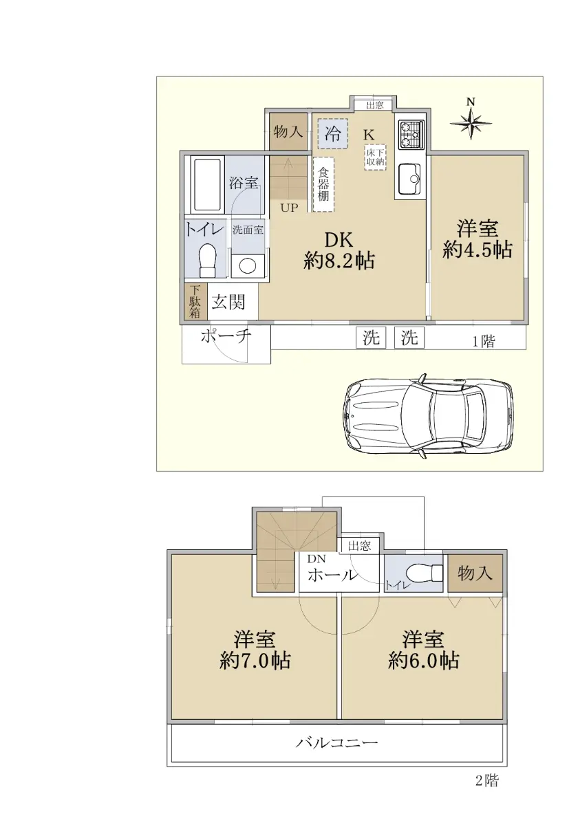
◎間取り:3DK
◎築年月:2004年6月
◎駐車スペース1台あり(車種による)
◎閑静な住宅街に存す
◎住環境良好です
◎2020年4月外壁・屋根塗装済み

近期網站遭惡意攻擊,基於安全考量
目前僅接受會員查詢物件詳細資料
類型 一戶建
物件編號 1105713
名稱 三鷹市井口5丁目戸建
價格 4,480万円
物件現況 居住中
管理費等 0円
修繕積立金 0円
所在地 東京都三鷹市井口5丁目
交通 中央線武蔵境 (步行 18 分)
格局 3DK
房號 --
總樓層 2階建 
屋齡 2004 年 (築 22 年)
面積 57.74㎡
約 17.47 坪
約 621.51 平方英呎
平米單價 日幣:77.59万円
台幣:15.57萬
港幣:3.81萬
坪單價 日幣:256.49万円
台幣:51.48萬
港幣:12.59萬
平方英呎 日幣:7.21万円
台幣:1.45萬
港幣:0.35萬
總戶數 1
方位 --
建築構造 木造
土地權利 所有権
用途地域 第1種低層住居専用地域
土地面積 71.19㎡
都市計畫 市街化区域
備註 この度は、【三鷹市井口5丁目戸建】をご覧頂きありがとうございます。

□JR中央線・西武多摩川線「武蔵境」駅徒歩18分
□JR中央線「東小金井」駅徒歩18分
□西武多摩川線「新小金井」駅徒歩14分

物件の詳細や資料請求は担当『吉原』までお問い合わせください。
お客様専用フリーコール:0120-301-451
情報公開日 2026年3月16日
目前狀態 居住中
合約狀態 仲介
個人情報蒐集前告知
JP-Home.com 日本房屋網為上益國際有限公司經營管理,為了確保消費者之個人資料、隱私及消費者權益之保護,於交易過程中將使用消費者之個人資料,謹依個人資料保護法第 8 條規定,蒐集個人資料除用於本公司之會員管理、客戶管理之檢索查詢等功能外,本公司將利用個人電話號碼、LINE、Email 資料進行行銷,如有侵害到個人權益,請告知請求刪除會員資料。


  • 宜家國際地產(統一編號:42647425)
    本網站所刊登之不動產物件均已合法授權刊登
    本網站內容享有著作權,禁止侵害,違者必究
    Copyright © 2011 - 2026 All Rights Reserved