物件搜尋:


東京都下 町田市(町田市広袴町一棟マンション)

專家的建議


■交通:バス停「広袴中央」徒歩8分、小田急線「鶴川」駅までバス乗車15分
    小田急線「栗平」駅まで徒歩16分
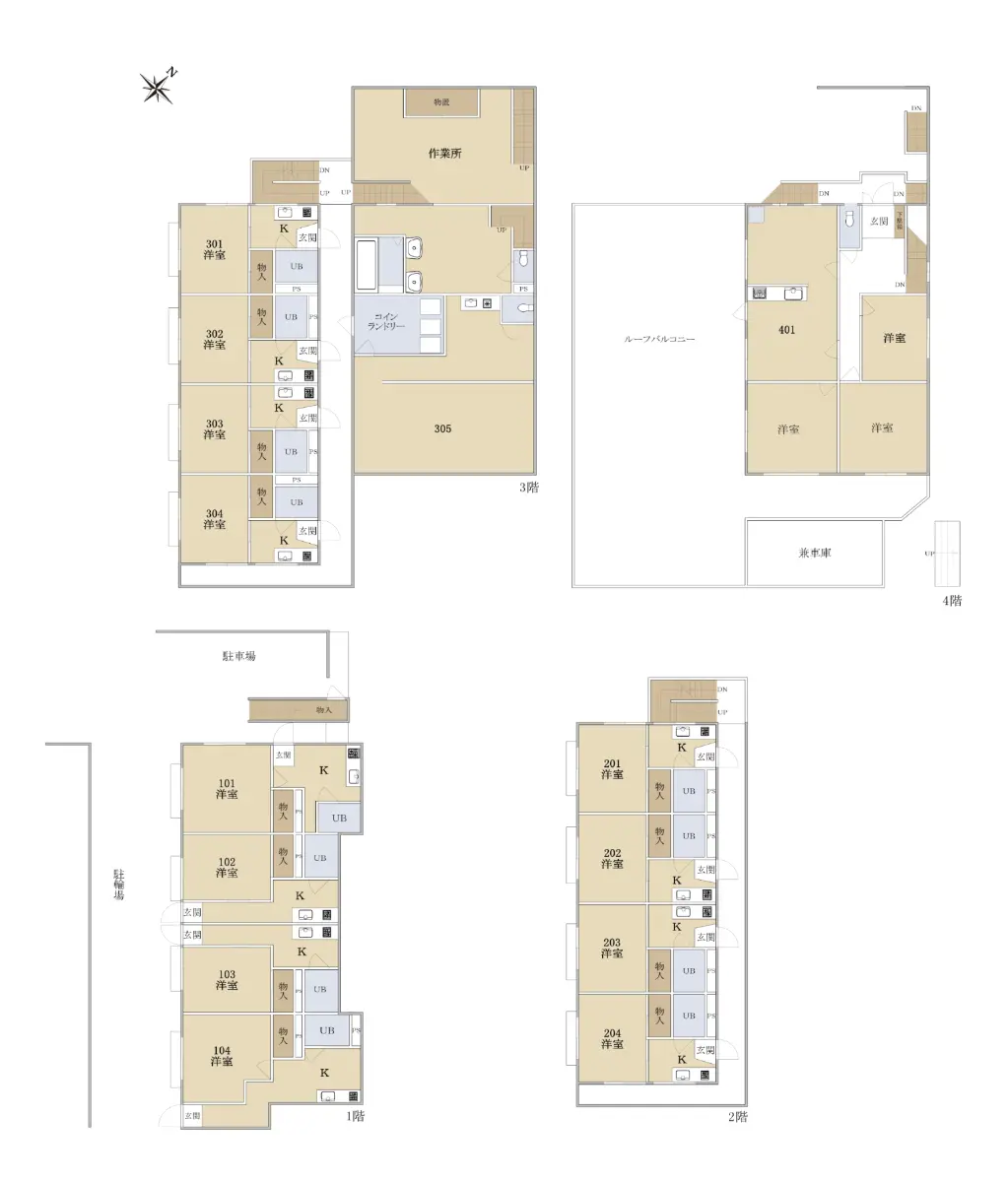
■敷地面積:462.79㎡
■建物面積:416.47㎡
■構造:鉄筋コンクリート4階建
■築年月:1985年5月
■13戸+事務所~Life Information~
・広袴公園 約340m
・広袴みどり野公園 約670m
・ローソン・スリーエフ町田広袴店 約630m
・ビッグ・エー

近期網站遭惡意攻擊,基於安全考量
目前僅接受會員查詢物件詳細資料
類型 公寓
物件編號 1106215
名稱 町田市広袴町一棟マンション
價格 10,920万円
物件現況 出租中
管理費等 0円
修繕積立金 0円
可月出租 613,000円
投報率 6.74%
所在地 東京都町田市広袴町
交通 小田急多摩線栗平 (步行 16 分)
房號 --
總樓層 4階建 
屋齡 1985 年 (築 41 年)
面積 416.47㎡
約 125.98 坪
約 4,482.88 平方英呎
平米單價 日幣:26.22万円
台幣:5.28萬
港幣:1.29萬
坪單價 日幣:86.68万円
台幣:17.44萬
港幣:4.27萬
平方英呎 日幣:2.44万円
台幣:0.49萬
港幣:0.12萬
總戶數 13
方位 --
建築構造 鉄筋コンクリート造
土地權利 所有権
用途地域 第1種低層住居専用地域
土地面積 462.79㎡
都市計畫 市街化区域
備註 -不動産の購入を検討中のお客様へ-
物件のご検討については、写真や図面だけではなく、
現地を見ていただく事をお勧めします。
現地をご覧頂くことにより立地条件や周辺環境等を確認いただくだけでなく、
ご案内する担当者より、プロの目から見た長所、短所等を詳しくご説明差し上げる事もできます。
興味をお持ちのお客様は是非お問い合わせ下さい。

フリーコール/0120-331-038
情報公開日 2026年3月22日
目前狀態 賃貸中
合約狀態 仲介
個人情報蒐集前告知
JP-Home.com 日本房屋網為上益國際有限公司經營管理,為了確保消費者之個人資料、隱私及消費者權益之保護,於交易過程中將使用消費者之個人資料,謹依個人資料保護法第 8 條規定,蒐集個人資料除用於本公司之會員管理、客戶管理之檢索查詢等功能外,本公司將利用個人電話號碼、LINE、Email 資料進行行銷,如有侵害到個人權益,請告知請求刪除會員資料。