物件搜尋:


大阪府 大阪市港区(大阪市港区三先二丁目戸建)

專家的建議


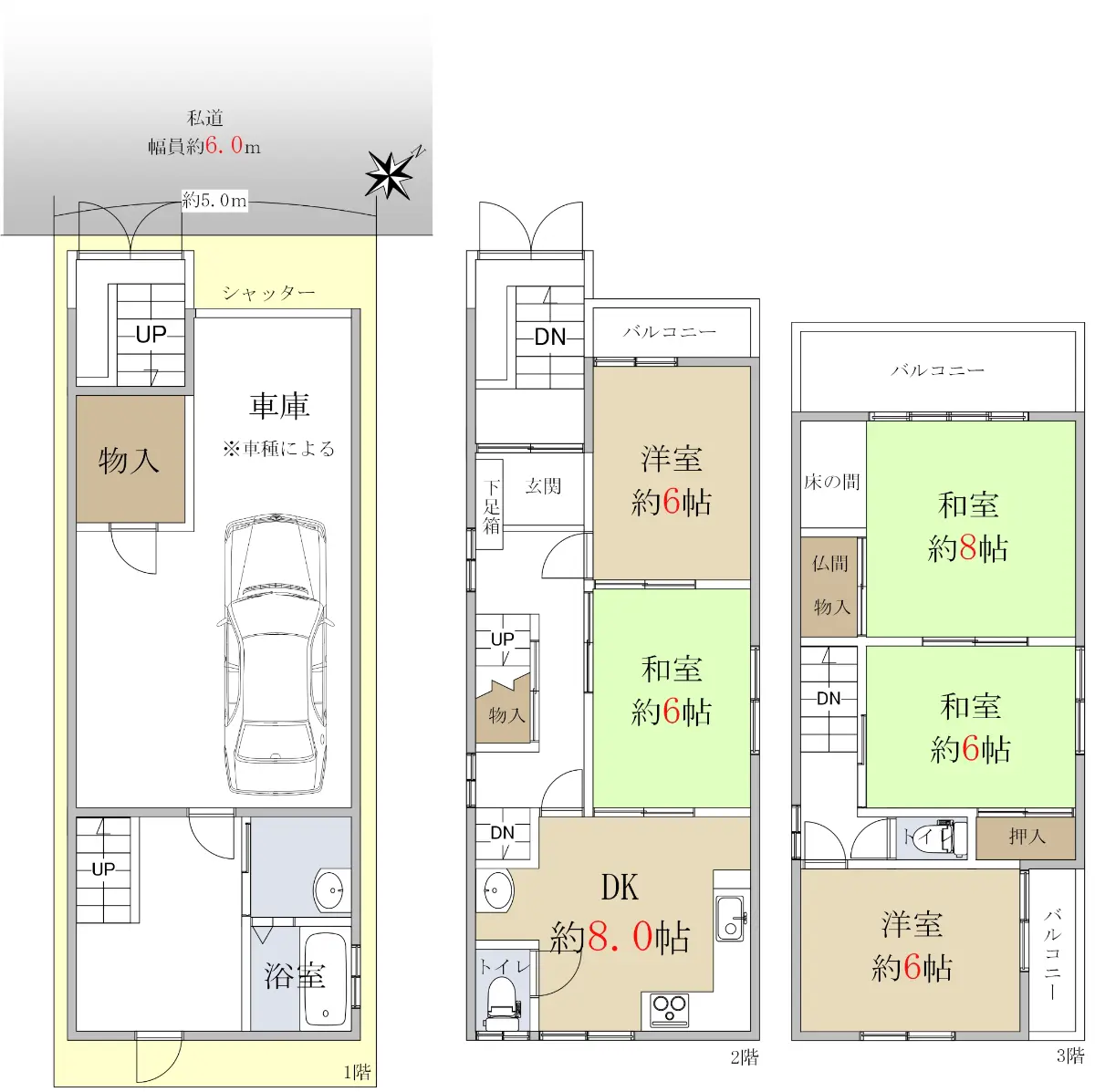
■大阪メトロ中央線『朝潮橋』駅徒歩8分
■前面道路幅員約6.0m
■土地面積約21.38坪
■土地間口約5.0m
■自動車+自転車やバイクも駐車可能な車庫あり
 ※車種による
■木・鉄筋コンクリート造3階建
■5DK
■リフォーム歴あり
 ◎IHクッキングヒーター新調(2024年12月)
 ◎給湯器新調(2025年11月)
≪ 周辺環境 ≫
◎三先小学校・・・・・・・・・・約1

近期網站遭惡意攻擊,基於安全考量
目前僅接受會員查詢物件詳細資料
類型 一戶建
物件編號 1107480
名稱 大阪市港区三先二丁目戸建
價格 2,680万円
物件現況 居住中
管理費等 0円
修繕積立金 0円
所在地 大阪府大阪市港区三先2丁目
交通 大阪メトロ中央線朝潮橋 (步行 8 分)
格局 5DK
房號 --
總樓層 3階建 
屋齡 1982 年 (築 44 年)
面積 138.91㎡
約 42.02 坪
約 1,495.23 平方英呎
平米單價 日幣:19.29万円
台幣:3.88萬
港幣:0.95萬
坪單價 日幣:63.78万円
台幣:12.83萬
港幣:3.14萬
平方英呎 日幣:1.79万円
台幣:0.36萬
港幣:0.09萬
總戶數 1
方位 --
建築構造 木造
土地權利 所有権
用途地域 準工業地域
土地面積 70.70㎡
都市計畫 市街化区域
備註 この度は弊社ホームページをご覧頂き、誠にありがとうございます。
本物件は大阪メトロ中央線『朝潮橋』駅徒歩8分に位置しております。
前面道路幅員約6.0m、土地面積約21.38坪の3階建の戸建でシャッター付車庫もございます。
皆様からのお問い合わせ、お待ちしております。

◇◇不動産の購入を検討中のお客様へ◇◇
物件のご検討については、一度現地を見ていただく事をおすすめします。
間取り図面や写真では判断できない部分もあります。
現地をご覧いただくことで周辺環境や室内の状況等を確認いただくだけでなく、
担当者より、物件の長所、短所や購入の流れ等を詳しくご説明させていただきます。
情報公開日 2026年3月31日
目前狀態 居住中
合約狀態 仲介
個人情報蒐集前告知
JP-Home.com 日本房屋網為上益國際有限公司經營管理,為了確保消費者之個人資料、隱私及消費者權益之保護,於交易過程中將使用消費者之個人資料,謹依個人資料保護法第 8 條規定,蒐集個人資料除用於本公司之會員管理、客戶管理之檢索查詢等功能外,本公司將利用個人電話號碼、LINE、Email 資料進行行銷,如有侵害到個人權益,請告知請求刪除會員資料。