物件搜尋:


大阪府 大阪市西淀川区(大阪市西淀川区中島1丁目戸建)

專家的建議


■外壁及び屋根 鉄部・木部塗装(2023年9月)

◇土地面積:119.03㎡(約36坪)

◇延床面積:118.41㎡

◇前面道路幅員6.0m

◇阪神なんば線『出来島』駅 徒歩9分

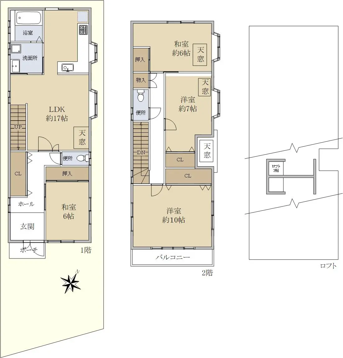
◇LDKと2階居室(洋室約7.0帖・和室約6.0帖)には天窓付!

◇ロフト約3.0帖有り!【周辺環境】
・川北小学校まで徒歩5分
・西淀川中島郵便局まで徒歩7分

近期網站遭惡意攻擊,基於安全考量
目前僅接受會員查詢物件詳細資料
類型 一戶建
物件編號 1107526
名稱 大阪市西淀川区中島1丁目戸建
價格 3,180万円
物件現況 空家
管理費等 0円
修繕積立金 0円
所在地 大阪府大阪市西淀川区中島1丁目
交通 阪神なんば線出来島 (步行 9 分)
格局 4LDK
房號 --
總樓層 2階建 
屋齡 1999 年 (築 27 年)
面積 118.41㎡
約 35.82 坪
約 1,274.57 平方英呎
平米單價 日幣:26.86万円
台幣:5.40萬
港幣:1.32萬
坪單價 日幣:88.78万円
台幣:17.86萬
港幣:4.36萬
平方英呎 日幣:2.49万円
台幣:0.50萬
港幣:0.12萬
總戶數 1
方位 --
建築構造 木造
土地權利 所有権
用途地域 第1種住居地域
土地面積 119.03㎡
都市計畫 市街化区域
備註 ホームページをご覧頂き誠にありがとうございます。

本物件は、日当たり良好・風通し良好です!

大阪市立川北小学校まで約390m(徒歩5分)の近さです!

是非、一度ご見学ください。
情報公開日 2026年3月31日
目前狀態 空家
合約狀態 仲介
個人情報蒐集前告知
JP-Home.com 日本房屋網為上益國際有限公司經營管理,為了確保消費者之個人資料、隱私及消費者權益之保護,於交易過程中將使用消費者之個人資料,謹依個人資料保護法第 8 條規定,蒐集個人資料除用於本公司之會員管理、客戶管理之檢索查詢等功能外,本公司將利用個人電話號碼、LINE、Email 資料進行行銷,如有侵害到個人權益,請告知請求刪除會員資料。


  • 宜家國際地產(統一編號:42647425)
    本網站所刊登之不動產物件均已合法授權刊登
    本網站內容享有著作權,禁止侵害,違者必究
    Copyright © 2011 - 2026 All Rights Reserved