物件搜尋:


東京23区 目黒区(目黒区碑文谷1丁目戸建)

專家的建議


Access━━━━・・・

■東急目黒線「西小山」駅徒歩15分
■東急目黒線・大井町線「大岡山」駅徒歩16分
■東急東横線「都立大学」駅徒歩16分
■東急目黒線「洗足」駅徒歩16分
☆3沿線4駅利用可能
□「目黒」駅バス20分 碑文谷八幡バス停徒歩4分

Point━━━━・・・

◇閑静な住宅街に立地
◇土地権利:所有権
◇土地面積:62.97㎡
◇建物

近期網站遭惡意攻擊,基於安全考量
目前僅接受會員查詢物件詳細資料
類型 一戶建
物件編號 1107566
名稱 目黒区碑文谷1丁目戸建
價格 11,900万円 > 10,980万円
物件現況 居住中
管理費等 0円
修繕積立金 0円
所在地 東京都目黒区碑文谷1丁目
交通 東急目黒線西小山 (步行 15 分)
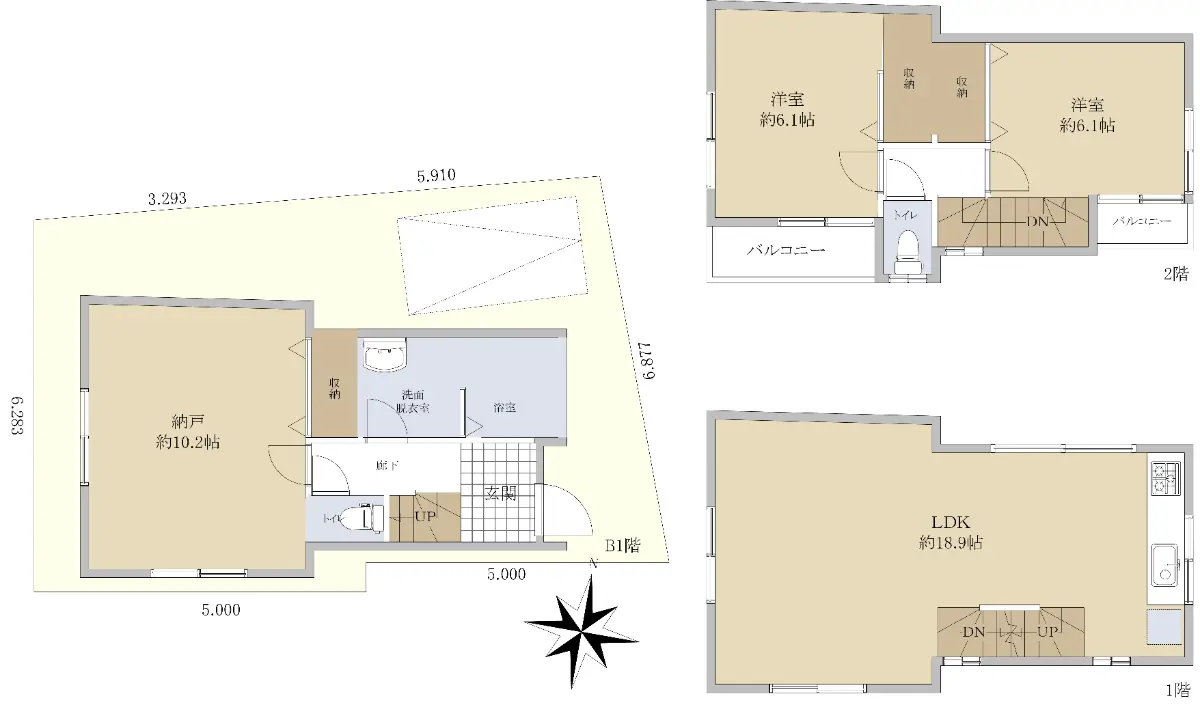
格局 2SLDK
房號 --
總樓層 2階建 
屋齡 2004 年 (築 22 年)
面積 94.39㎡
約 28.55 坪
約 1,016.01 平方英呎
平米單價 日幣:126.07万円
台幣:25.09萬
港幣:6.23萬
坪單價 日幣:416.77万円
台幣:82.94萬
港幣:20.58萬
平方英呎 日幣:11.71万円
台幣:2.33萬
港幣:0.58萬
總戶數 1
方位 --
建築構造 木造
土地權利 所有権
用途地域 第1種中高層住居専用地域
土地面積 62.97㎡
都市計畫 市街化区域
備註 【目黒区碑文谷1丁目戸建】の詳細ページをご覧いただき、誠にありがとうございます。

物件の検討にあたっては、是非一度ご内見頂くことをお勧めいたします。

当物件は2025年11月に浴室・洗面台・トイレなど新規交換完了したお部屋となっております。
建物南側は通路・駐車場となっており、東側・南側から光が入ります。

また、2階へ行くためにリビングを通る間取りになり、家族でコミュニケーションがとりやすい間取りになります。

ご内見をご希望の際は、担当までお気軽にご連絡ください。
情報公開日 2026年3月31日
目前狀態 居住中
合約狀態 仲介
個人情報蒐集前告知
JP-Home.com 日本房屋網為上益國際有限公司經營管理,為了確保消費者之個人資料、隱私及消費者權益之保護,於交易過程中將使用消費者之個人資料,謹依個人資料保護法第 8 條規定,蒐集個人資料除用於本公司之會員管理、客戶管理之檢索查詢等功能外,本公司將利用個人電話號碼、LINE、Email 資料進行行銷,如有侵害到個人權益,請告知請求刪除會員資料。