物件搜尋:


東京23区 目黒区(目黒区柿の木坂3丁目戸建)

專家的建議


◎2路線3駅利用可
 東急東横線学芸大学駅 徒歩16分
 東急東横線都立大学駅 徒歩17分
 東急田園都市線駒沢大学駅 徒歩17分

◇車庫2台分有り(車種による)
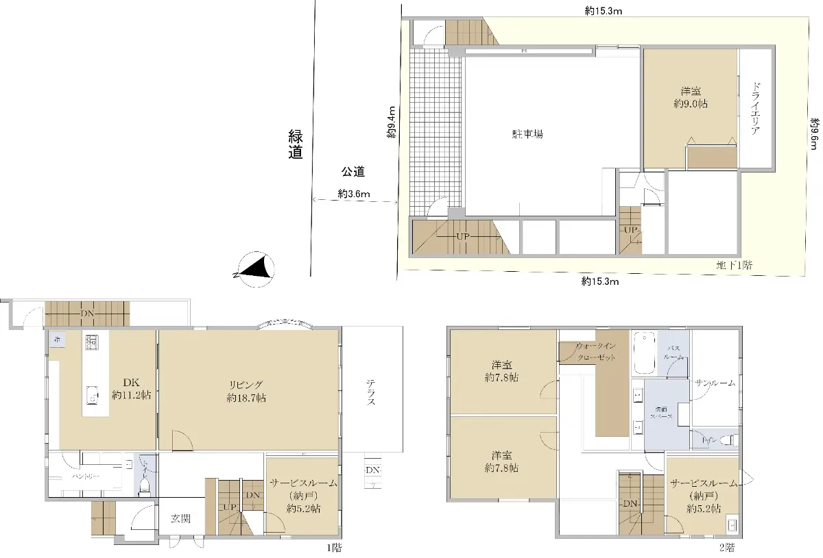
◇建物面積 1階:80.39㎡ 2階:75.77㎡ 地下1階:64.17㎡
 1985年4月築 三井ホーム施工
◇2018年11月 リフォーム実施
  キッチン新規交換(人工大理石カウンター)
  洗面・浴室・トイレ衛生設備新規交換等

近期網站遭惡意攻擊,基於安全考量
目前僅接受會員查詢物件詳細資料
類型 一戶建
物件編號 1107568
名稱 目黒区柿の木坂3丁目戸建
價格 22,800万円
物件現況 居住中
管理費等 0円
修繕積立金 0円
所在地 東京都目黒区柿の木坂3丁目
交通 東急東横線学芸大学 (步行 16 分)
格局 3SLDK
房號 --
總樓層 2階建 
屋齡 1985 年 (築 41 年)
面積 220.33㎡
約 66.65 坪
約 2,371.63 平方英呎
平米單價 日幣:103.48万円
台幣:20.82萬
港幣:5.09萬
坪單價 日幣:342.09万円
台幣:68.83萬
港幣:16.82萬
平方英呎 日幣:9.61万円
台幣:1.93萬
港幣:0.47萬
總戶數 1
方位 --
建築構造 木造
土地權利 所有権
用途地域 第1種低層住居専用地域
土地面積 145.47㎡
都市計畫 市街化区域
備註 本物件は緑道沿いに佇む三井ホーム施工の物件となります。
2018年11月にリフォームを実施しており、室内は大変綺麗です。
室内からは欅の大木や桜を眺めることができます。
並列2台駐車可能な車庫があります(車種による)。
電動シャッター付で車庫から室内への階段がついていますので、
雨の日にも傘入らずで入室できます。
是非、一度室内をご覧ください。
情報公開日 2026年3月31日
目前狀態 居住中
合約狀態 仲介
個人情報蒐集前告知
JP-Home.com 日本房屋網為上益國際有限公司經營管理,為了確保消費者之個人資料、隱私及消費者權益之保護,於交易過程中將使用消費者之個人資料,謹依個人資料保護法第 8 條規定,蒐集個人資料除用於本公司之會員管理、客戶管理之檢索查詢等功能外,本公司將利用個人電話號碼、LINE、Email 資料進行行銷,如有侵害到個人權益,請告知請求刪除會員資料。