物件搜尋:


東京23区 豊島区(豊島区目白四丁目賃貸併用住宅)

專家的建議


≪交通≫
◇JR山手線「目白」駅まで約1040m徒歩13分
◇西武池袋線「椎名町」駅まで約400m徒歩5分

≪物件概要≫
◇土地面積:111.42㎡(33.70坪)
◇建物面積:114.91㎡(34.76坪)
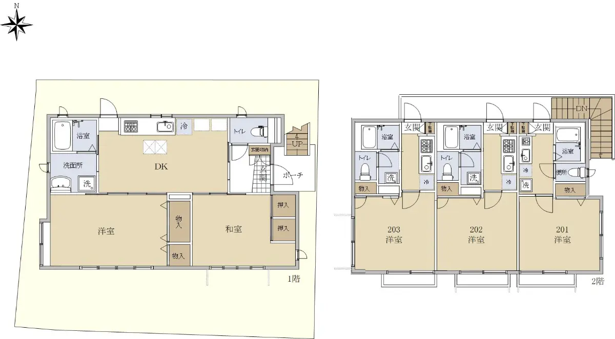
◇間取り:2DK+1K×3
◇軽量鉄骨造2階建

◇こだわり的賃貸併用住宅(積水ハウス株式会社施工)
◇24H換気システム
◇浴室に窓有り
◇1階 電動シャッ

近期網站遭惡意攻擊,基於安全考量
目前僅接受會員查詢物件詳細資料
類型 一戶建
物件編號 1107652
名稱 豊島区目白四丁目賃貸併用住宅
價格 14,900万円
物件現況 居住中
管理費等 0円
修繕積立金 0円
所在地 東京都豊島区目白4丁目
交通 山手線目白 (步行 13 分)
格局 2DK
房號 --
總樓層 2階建 
屋齡 2004 年 (築 22 年)
面積 114.91㎡
約 34.76 坪
約 1,236.89 平方英呎
平米單價 日幣:129.67万円
台幣:26.09萬
港幣:6.37萬
坪單價 日幣:428.65万円
台幣:86.25萬
港幣:21.07萬
平方英呎 日幣:12.05万円
台幣:2.42萬
港幣:0.59萬
總戶數 1
方位 --
建築構造 軽量鉄骨
土地權利 所有権
用途地域 第1種中高層住居専用地域
土地面積 111.42㎡
都市計畫 市街化区域
備註 当物件をご覧いただきありがとうございます。
賃貸併用住宅として、1階の居住用部分と2階の賃貸部分(1K×3部屋)となっております。
JR山手線目白駅まで徒歩13分という立地でございます。
ご内覧のご希望も受け付けておりますので、お気軽にお問い合わせください。
情報公開日 2026年3月31日
目前狀態 居住中
合約狀態 仲介
個人情報蒐集前告知
JP-Home.com 日本房屋網為上益國際有限公司經營管理,為了確保消費者之個人資料、隱私及消費者權益之保護,於交易過程中將使用消費者之個人資料,謹依個人資料保護法第 8 條規定,蒐集個人資料除用於本公司之會員管理、客戶管理之檢索查詢等功能外,本公司將利用個人電話號碼、LINE、Email 資料進行行銷,如有侵害到個人權益,請告知請求刪除會員資料。