物件搜尋:


愛知県 名古屋市東区(メガシティテラスA棟)

專家的建議


■3LDK
■RC造10階建6階部分
■コンシェルジュサービス有(無償)
■24時有人管理・三重オートロック
■前面棟無し
■室内状況良好
■リビングに床暖房・キッチンにディスポーザー有
■共用施設充実
・フィットネスルーム(無償)
・キッズルーム(有償)
・パーティルーム(有償)
・ゲストルーム(有償)

<ライフインフォメーション>
・ファミリーマート砂

近期網站遭惡意攻擊,基於安全考量
目前僅接受會員查詢物件詳細資料
類型 華廈
物件編號 1107983
名稱 メガシティテラスA棟
價格 4,280万円 > 4,080万円
物件現況 居住中
管理費等 9,996円
修繕積立金 9,170円
所在地 愛知県名古屋市東区砂田橋4丁目
交通 地下鉄名城線茶屋ヶ坂 (步行 5 分)
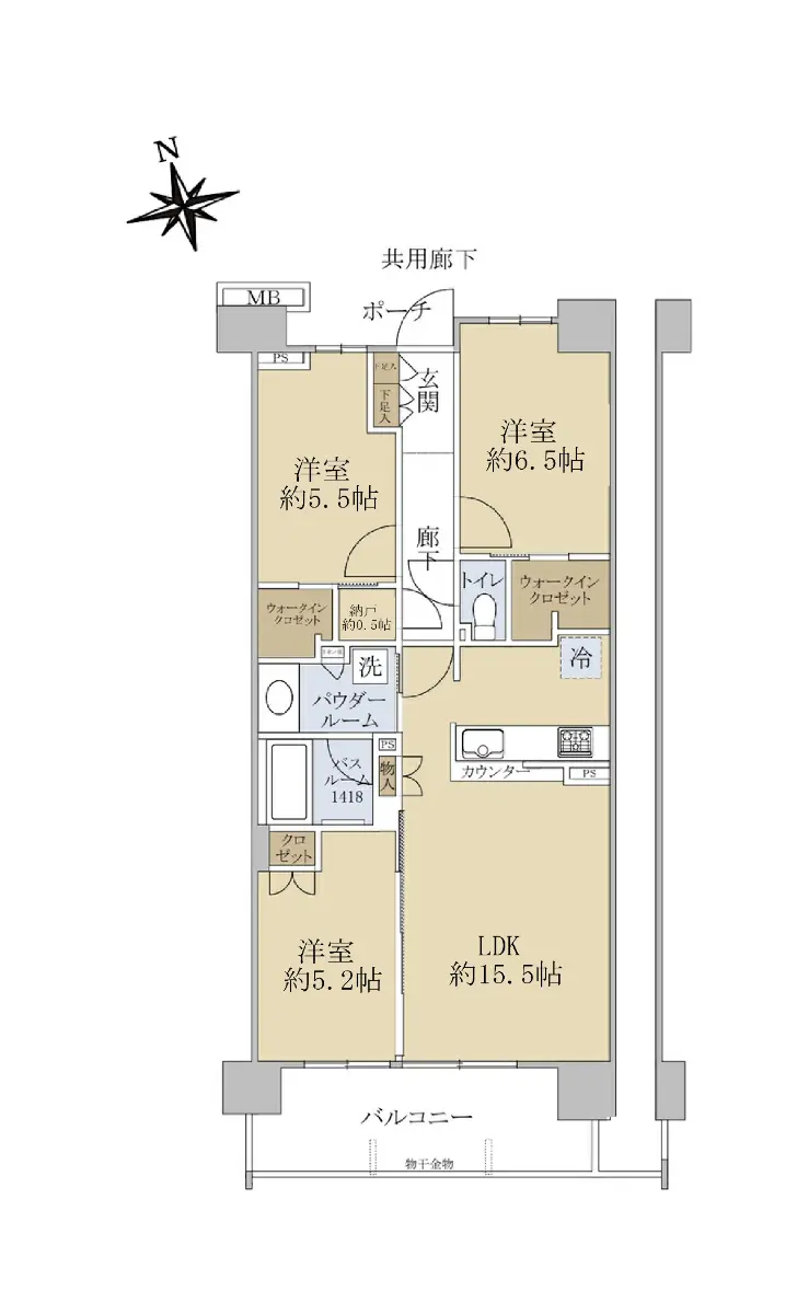
格局 3LDK
房號 --
總樓層 6階部分/10階建 
屋齡 2018 年 (築 8 年)
面積 72.70㎡
約 21.99 坪
約 782.54 平方英呎
陽台 12m²
約 3.63 坪
約 129.17 平方英呎
平米單價 日幣:58.87万円
台幣:11.69萬
港幣:2.90萬
坪單價 日幣:194.62万円
台幣:38.63萬
港幣:9.59萬
平方英呎 日幣:5.47万円
台幣:1.09萬
港幣:0.27萬
總戶數 553
方位
建築構造 鉄筋コンクリート造
土地權利 所有権
用途地域 -
管理形態 全部委託
管理公司 住友不動産建物サービス
管理人 常駐
建築公司 株式会社長谷工コーポレーション
土地面積 -
都市計畫 -
備註 ご覧いただきありがとうございます。
本マンションは全5棟からなる「メガシティ」プロジェクトマンションのA棟(1棟)でございます。

同プロジェクトマンションの内、A棟は前面に他の棟がないため、眺望や日当たり、風通しが非常に良好でございます。
エントランスロビーからの距離も短く、各種共用設備の利用にも優れています。

本物件は本マンションの6階部分、南向き3LDK住戸でございます。6階部分でございますので、A棟(1棟)の中でも採光・眺望に優れます。
また3室の洋室の内、北側2室にはウォークインクローゼットが、南側の洋室にはクローゼットが備わっています。廊下部分にも約0.5帖の納戸を採用し、ご家財の多いご家庭にもご安心いただける造りでございます。

水廻り設備を中心に、オーナー様の生活を支える設備が整っています。キッチンには食洗器はもちろん、浄水器・ディスポーザーが備わっております。24時間対応のゴミステーションもございますので、ごみの処理に困りません。
情報公開日 2026年4月3日
目前狀態 居住中
合約狀態 仲介
個人情報蒐集前告知
JP-Home.com 日本房屋網為上益國際有限公司經營管理,為了確保消費者之個人資料、隱私及消費者權益之保護,於交易過程中將使用消費者之個人資料,謹依個人資料保護法第 8 條規定,蒐集個人資料除用於本公司之會員管理、客戶管理之檢索查詢等功能外,本公司將利用個人電話號碼、LINE、Email 資料進行行銷,如有侵害到個人權益,請告知請求刪除會員資料。