物件搜尋:


京都府 京都市北区(京都市北区上賀茂菖蒲園町戸建)

專家的建議


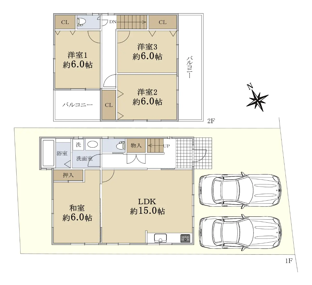
●平成19年11月建築
●4LDK的間取り
●建物状況調査(インスペクション)実施済
●1階に和室有
●LD部分に床暖房有
●各居室ペアガラス
●バルコニー2か所有
●カースペース2台分有
(車種による)




<周辺環境>
・生鮮館なかむら上賀茂店 約500m/徒歩7分
・スーパーフレスコ御園橋店 約700m/徒歩9分
・セブンイレブ

近期網站遭惡意攻擊,基於安全考量
目前僅接受會員查詢物件詳細資料
類型 一戶建
物件編號 1108142
名稱 京都市北区上賀茂菖蒲園町戸建
價格 5,200万円 > 4,980万円
物件現況 空家
管理費等 0円
修繕積立金 0円
所在地 京都府京都市北区上賀茂菖蒲園町
交通 京都市烏丸線北山 (步行 16 分)
格局 4LDK
房號 --
總樓層 2階建 
屋齡 2007 年 (築 19 年)
面積 91.35㎡
約 27.63 坪
約 983.29 平方英呎
平米單價 日幣:56.92万円
台幣:11.30萬
港幣:2.80萬
坪單價 日幣:188.18万円
台幣:37.35萬
港幣:9.27萬
平方英呎 日幣:5.29万円
台幣:1.05萬
港幣:0.26萬
總戶數 1
方位 --
建築構造 木造
土地權利 所有権
用途地域 第1種低層住居専用地域
土地面積 114.22㎡
都市計畫 市街化区域
備註 この度は京都市北区上賀茂菖蒲園町(かみがもしょうぶえんちょう)の
物件詳細ページをご覧頂きまして
誠にありがとうございます。

賀茂川まで約80mに所在する中古戸建です。
平成19年11月建築の
4LDKの間取りとなっております。

1階にはLDK+和室があり
2階には洋室3部屋がございます。
情報公開日 2026年4月4日
目前狀態 空家
合約狀態 仲介
個人情報蒐集前告知
JP-Home.com 日本房屋網為上益國際有限公司經營管理,為了確保消費者之個人資料、隱私及消費者權益之保護,於交易過程中將使用消費者之個人資料,謹依個人資料保護法第 8 條規定,蒐集個人資料除用於本公司之會員管理、客戶管理之檢索查詢等功能外,本公司將利用個人電話號碼、LINE、Email 資料進行行銷,如有侵害到個人權益,請告知請求刪除會員資料。