物件搜尋:


東京都下 国分寺市(国分寺市西町3丁目戸建)

專家的建議


~Point~
■セルコホーム施工的輸入住宅
■断熱性・耐久性的高い総レンガ外壁
■耐震性的高い2×6工法
■1階的床に無垢材フローリングを採用
■50坪超的敷地面積
■南側に人工芝的庭有り
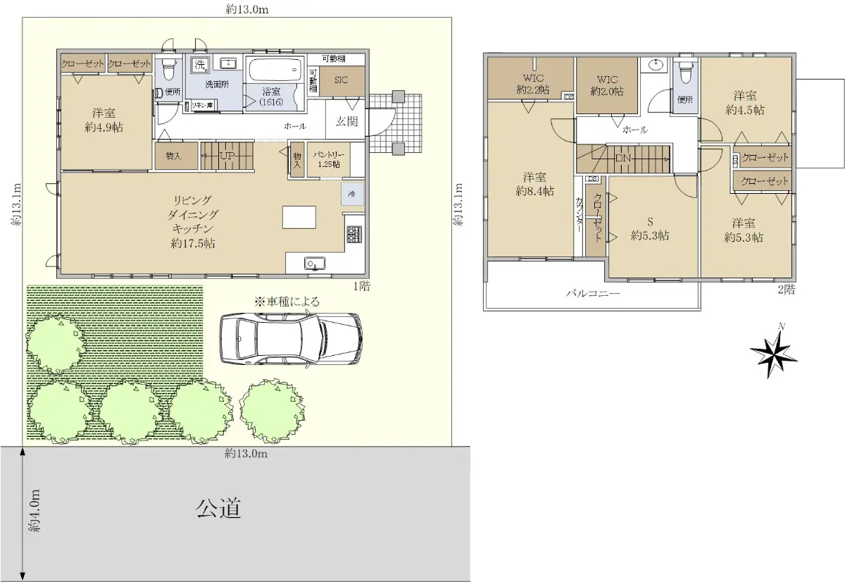
■広々とした約17.5帖的LDK
■南道路につき陽当り良好

~充実した設備・収納~
■オール電化
■エコキュート
■広々としたL字型キッチン+アイランド型作業台
 ※

近期網站遭惡意攻擊,基於安全考量
目前僅接受會員查詢物件詳細資料
類型 一戶建
物件編號 1108887
名稱 国分寺市西町3丁目戸建
價格 11,500万円
物件現況 居住中
管理費等 0円
修繕積立金 0円
所在地 東京都国分寺市西町3丁目
交通 中央線国立 (步行 22 分)
格局 4SLDK
房號 --
總樓層 2階建 
屋齡 2016 年 (築 10 年)
面積 121.72㎡
約 36.82 坪
約 1,310.19 平方英呎
平米單價 日幣:94.48万円
台幣:18.79萬
港幣:4.63萬
坪單價 日幣:312.33万円
台幣:62.11萬
港幣:15.32萬
平方英呎 日幣:8.78万円
台幣:1.75萬
港幣:0.43萬
總戶數 1
方位 --
建築構造 木造
土地權利 所有権
用途地域 第1種低層住居専用地域
土地面積 170.75㎡
都市計畫 市街化区域
備註 この度は『 国分寺市西町3丁目戸建 』のページをご覧いただきまして、誠に有難うございます。

本物件は総レンガ外壁の特徴のある外観で、土地面積が50坪超の整形地、LDKが約17.5帖あり、
開放感のある広々とした物件です。
シューズインクロークやウォークインクローゼット、パントリーなど、豊富な収納も魅力的です。
室内大変丁寧にお使いですので、是非一度、現地をご覧ください。
情報公開日 2026年4月11日
目前狀態 居住中
合約狀態 仲介
個人情報蒐集前告知
JP-Home.com 日本房屋網為上益國際有限公司經營管理,為了確保消費者之個人資料、隱私及消費者權益之保護,於交易過程中將使用消費者之個人資料,謹依個人資料保護法第 8 條規定,蒐集個人資料除用於本公司之會員管理、客戶管理之檢索查詢等功能外,本公司將利用個人電話號碼、LINE、Email 資料進行行銷,如有侵害到個人權益,請告知請求刪除會員資料。