物件搜尋:


東京23区 足立区(足立区西新井4丁目戸建)

專家的建議


【アクセス】
●日暮里・舎人ライナー線「谷在家」駅 徒歩4分

【物件情報】
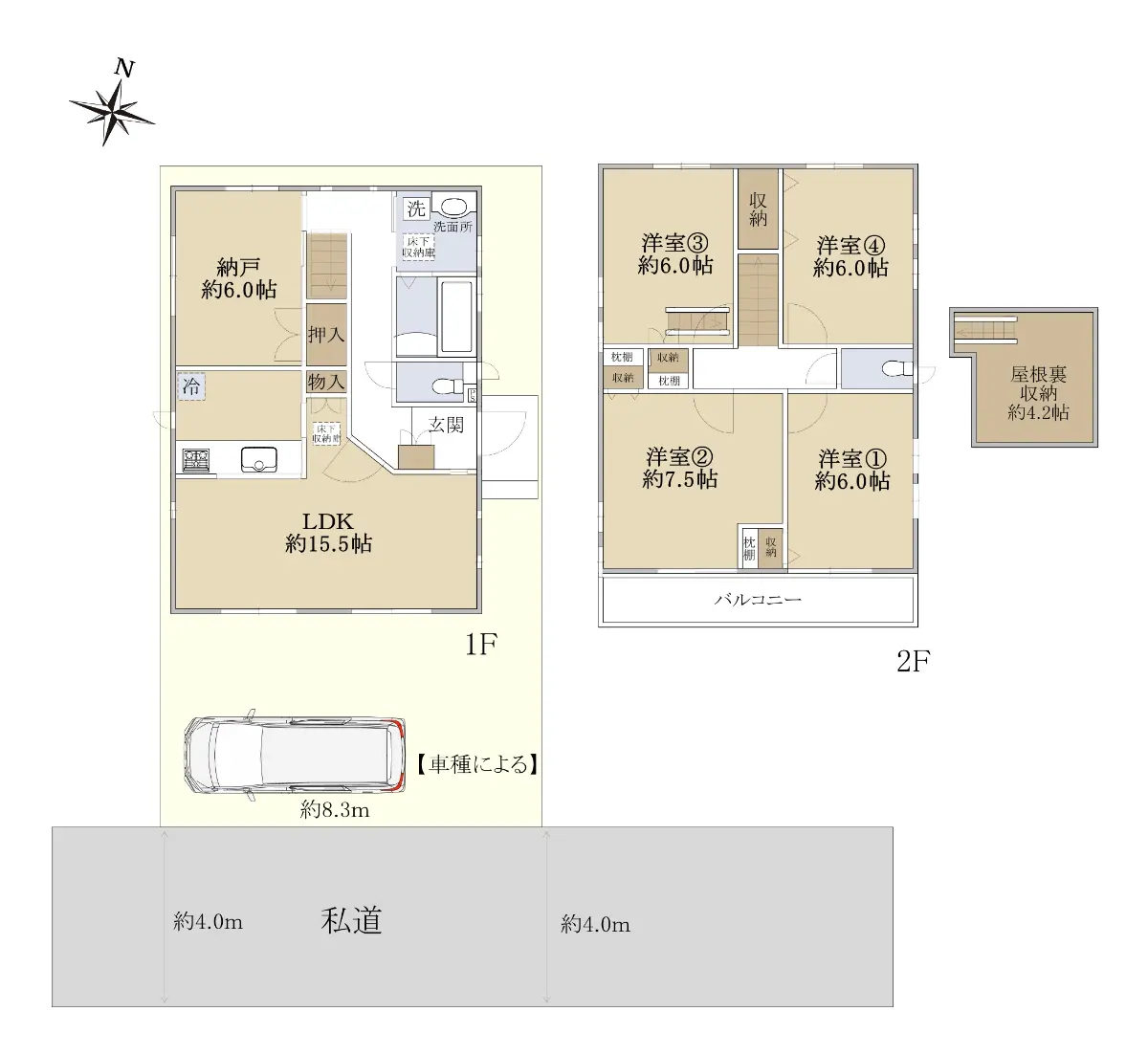
●土地面積:119.37㎡
●建物面積:107.23㎡
●間取:4SLDK
●木造スレート葺2階建
●2008年2月築
●採光南東向き
●駐車場有(車種による)
●屋根裏収納・床下収納有
【周辺環境】
■まいばすけっと足立西新井4丁目店 徒歩7分
■ローソン谷在家駅前店 徒歩5分<

近期網站遭惡意攻擊,基於安全考量
目前僅接受會員查詢物件詳細資料
類型 一戶建
物件編號 1109644
名稱 足立区西新井4丁目戸建
價格 6,780万円
物件現況 居住中
管理費等 0円
修繕積立金 0円
所在地 東京都足立区西新井4丁目
交通 日暮里舎人ライナー谷在家 (步行 4 分)
格局 4SLDK
房號 --
總樓層 2階建 
屋齡 2008 年 (築 18 年)
面積 107.23㎡
約 32.44 坪
約 1,154.22 平方英呎
平米單價 日幣:63.23万円
台幣:12.53萬
港幣:3.12萬
坪單價 日幣:209.02万円
台幣:41.41萬
港幣:10.30萬
平方英呎 日幣:5.87万円
台幣:1.16萬
港幣:0.29萬
總戶數 1
方位 --
建築構造 木造
土地權利 所有権
用途地域 第1種低層住居専用地域
土地面積 119.37㎡
都市計畫 市街化区域
備註 この度は「足立区西新井4丁目戸建」のページをご覧頂きありがとうございます。
本物件は、日暮里・舎人ライナー「谷在家」駅徒歩4分の立地に佇む、2008年2月築の物件です。
木造2階建、4SLDKファミリータイプです。
また、カースペース(車種による)もございます。

◆物件のご検討については図面や写真だけでなく、現地を見て頂く事をお勧めしております。

◆物件に関する質問は担当までお問い合わせください。

◆お客様用フリーコールは0120-288-849です。
情報公開日 2026年4月17日
目前狀態 居住中
合約狀態 仲介
個人情報蒐集前告知
JP-Home.com 日本房屋網為上益國際有限公司經營管理,為了確保消費者之個人資料、隱私及消費者權益之保護,於交易過程中將使用消費者之個人資料,謹依個人資料保護法第 8 條規定,蒐集個人資料除用於本公司之會員管理、客戶管理之檢索查詢等功能外,本公司將利用個人電話號碼、LINE、Email 資料進行行銷,如有侵害到個人權益,請告知請求刪除會員資料。