物件搜尋:


東京23区 目黒区(目黒区自由が丘3丁目戸建)

專家的建議


【目黒区自由が丘3丁目戸建】

◎交通アクセス
◇東急東横線「自由が丘」駅徒歩11分
◇東急大井町線「自由が丘」駅徒歩11分

◎オススメポイント
◇再開発的進む自由が丘駅徒歩圏的アクセス良好な立地
◇学園通りから離れた第一種低層住居専用地域的閑静な住宅街
◇東急東横線・東急大井町線的2路線利用可能
◇2003年(平成15年)5月築、三井物産ハウステクノ施工的注文住宅
◇東道路、南向き住

近期網站遭惡意攻擊,基於安全考量
目前僅接受會員查詢物件詳細資料
類型 一戶建
物件編號 1109870
名稱 目黒区自由が丘3丁目戸建
價格 29,800万円
物件現況 居住中
管理費等 0円
修繕積立金 0円
所在地 東京都目黒区自由が丘3丁目
交通 東急東横線自由が丘 (步行 11 分)
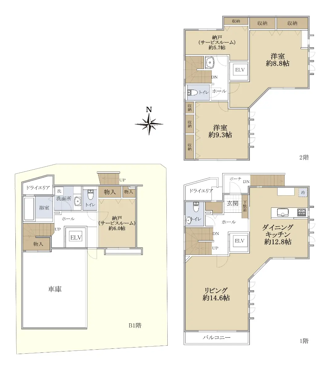
格局 2SLDK
房號 --
總樓層 2階建 
屋齡 2003 年 (築 23 年)
面積 189.84㎡
約 57.43 坪
約 2,043.44 平方英呎
平米單價 日幣:156.97万円
台幣:31.10萬
港幣:7.74萬
坪單價 日幣:518.92万円
台幣:102.81萬
港幣:25.58萬
平方英呎 日幣:14.58万円
台幣:2.89萬
港幣:0.72萬
總戶數 1
方位 --
建築構造 木造
土地權利 所有権
用途地域 第1種低層住居専用地域
土地面積 135.40㎡
都市計畫 市街化区域
備註 ご覧いただきありがとうございます。
自由が丘3丁目アドレスに佇む「自由が丘」駅徒歩11分の戸建です。

2003年(平成15年)5月築、三井物産ハウステクノ施工の注文住宅で、しっかりとした造りとなっております。
地下1階部分に半地下の車庫(車種による)がございます。

室内の見学希望はお気軽にお申し付けください。周辺環境に詳しくないお客様でも丁寧に説明いたします。

他にも条件に合いそうな周辺物件(マンション、戸建問わず)も紹介させていただきますので、まずはお客様のご希望をお聞かせください。
別途、お客様のご要望に応じてリフォームのご相談も承ります。
情報公開日 2026年4月19日
目前狀態 居住中
合約狀態 仲介
個人情報蒐集前告知
JP-Home.com 日本房屋網為上益國際有限公司經營管理,為了確保消費者之個人資料、隱私及消費者權益之保護,於交易過程中將使用消費者之個人資料,謹依個人資料保護法第 8 條規定,蒐集個人資料除用於本公司之會員管理、客戶管理之檢索查詢等功能外,本公司將利用個人電話號碼、LINE、Email 資料進行行銷,如有侵害到個人權益,請告知請求刪除會員資料。