物件搜尋:


東京23区 江戸川区(江戸川区中葛西1丁目戸建)

專家的建議


東西線 葛西駅 徒歩15分になります。
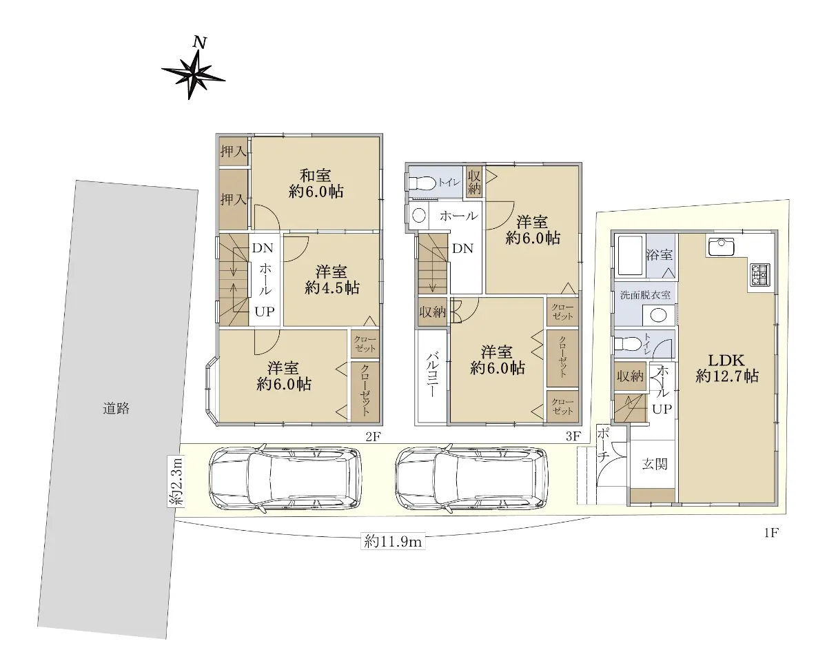
駐車スペースは2台駐車可能(2.3m×11.9m)車両サイズには一定的制限がございます。
2025年3月 建物外壁・屋根塗装工事実施済み。
路地状通路部分はタイル張りになっております。

近期網站遭惡意攻擊,基於安全考量
目前僅接受會員查詢物件詳細資料
類型 一戶建
物件編號 1109973
名稱 江戸川区中葛西1丁目戸建
價格 5,480万円
物件現況 居住中
管理費等 0円
修繕積立金 0円
所在地 東京都江戸川区中葛西1丁目
交通 東京メトロ東西線葛西 (步行 15 分)
格局 5LDK
房號 --
總樓層 3階建 
屋齡 1996 年 (築 30 年)
面積 101.71㎡
約 30.77 坪
約 1,094.81 平方英呎
平米單價 日幣:53.88万円
台幣:10.67萬
港幣:2.66萬
坪單價 日幣:178.11万円
台幣:35.29萬
港幣:8.78萬
平方英呎 日幣:5.01万円
台幣:0.99萬
港幣:0.25萬
總戶數 1
方位 --
建築構造 木造
土地權利 所有権
用途地域 第1種住居地域
土地面積 77.04㎡
都市計畫 市街化区域
備註 5LDKの間取り、駐車スペースも2台確保されています。
2025年3月外壁・屋根の塗装工事完了済みになります。
一度、ご覧になっていただければと思います。
情報公開日 2026年4月20日
目前狀態 居住中
合約狀態 仲介
個人情報蒐集前告知
JP-Home.com 日本房屋網為上益國際有限公司經營管理,為了確保消費者之個人資料、隱私及消費者權益之保護,於交易過程中將使用消費者之個人資料,謹依個人資料保護法第 8 條規定,蒐集個人資料除用於本公司之會員管理、客戶管理之檢索查詢等功能外,本公司將利用個人電話號碼、LINE、Email 資料進行行銷,如有侵害到個人權益,請告知請求刪除會員資料。