物件搜尋:


東京都下 武蔵野市(武蔵野市境5丁目戸建)

專家的建議


【アクセス】
JR中央線「東小金井」駅 徒歩15分
JR中央線「武蔵境」駅 徒歩19分
西武多摩川線「武蔵境」駅 徒歩19分

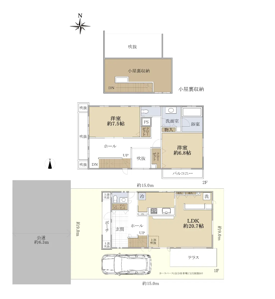
【物件概要】
・土地面積:135.53㎡
・建物面積:104.94㎡
・平成22年5月築

~Sales point~
◇ゆとりある玄関
◇トイレ2ヶ所(1、2階)
◇南向きバルコニー
◇駐車スペース(車種による)
◇独立

近期網站遭惡意攻擊,基於安全考量
目前僅接受會員查詢物件詳細資料
類型 一戶建
物件編號 1110208
名稱 武蔵野市境5丁目戸建
價格 13,800万円
物件現況 居住中
管理費等 0円
修繕積立金 0円
所在地 東京都武蔵野市境5丁目
交通 中央線東小金井 (步行 15 分)
格局 2LDK
房號 --
總樓層 2階建 
屋齡 2010 年 (築 16 年)
面積 104.94㎡
約 31.74 坪
約 1,129.57 平方英呎
平米單價 日幣:131.50万円
台幣:25.99萬
港幣:6.47萬
坪單價 日幣:434.72万円
台幣:85.93萬
港幣:21.37萬
平方英呎 日幣:12.22万円
台幣:2.41萬
港幣:0.60萬
總戶數 1
方位 --
建築構造 木造
土地權利 所有権
用途地域 第1種低層住居専用地域
土地面積 135.53㎡
都市計畫 市街化区域
備註 -不動産の購入をご検討中のお客様へ-

物件のご検討については、写真や図面だけではなく現地を見ていただく事をお勧めします。
現地をご覧頂くことにより、周辺環境を確認いただけるだけでなく、
ご案内する担当者よりプロの目から見た長所・短所等を詳しくご説明差し上げる事もできます。
興味をお持ちのお客様は是非お問い合わせください。

フリーコール:0120-301-451

【販売図面】物件の魅力をお伝えいたします。
情報公開日 2026年4月23日
目前狀態 居住中
合約狀態 仲介
個人情報蒐集前告知
JP-Home.com 日本房屋網為上益國際有限公司經營管理,為了確保消費者之個人資料、隱私及消費者權益之保護,於交易過程中將使用消費者之個人資料,謹依個人資料保護法第 8 條規定,蒐集個人資料除用於本公司之會員管理、客戶管理之檢索查詢等功能外,本公司將利用個人電話號碼、LINE、Email 資料進行行銷,如有侵害到個人權益,請告知請求刪除會員資料。