物件搜尋:


東京都下 小平市(小平市学園東町1丁目戸建)

專家的建議


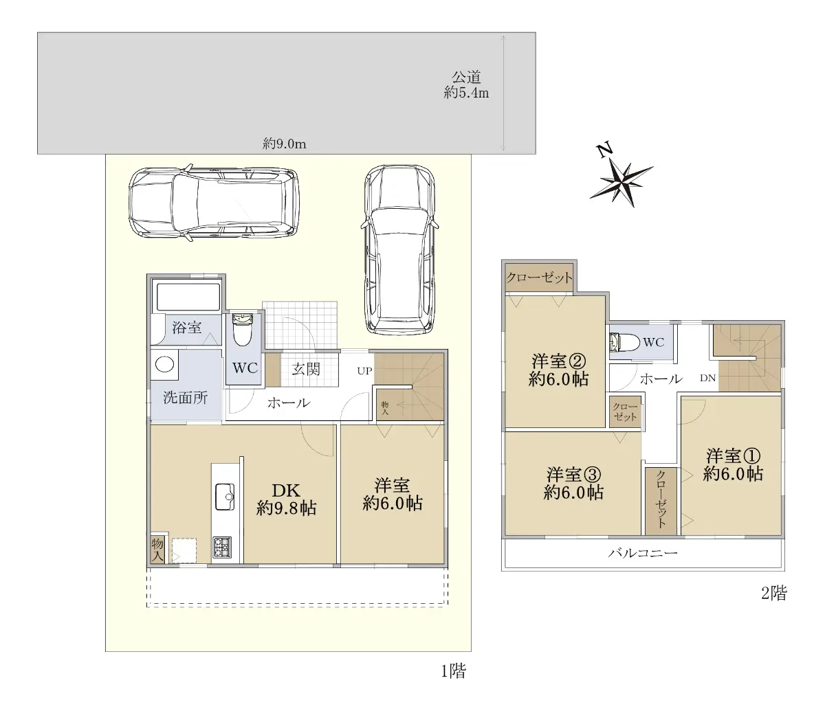
■西武多摩湖線「一橋学園」駅徒歩5分
■北側公道接道
■前面道路幅員約5.4m
■土地面積:111.90㎡
■建物面積:87.76㎡
■第一種低層住居専用地域的住宅街
■全居室6.0帖
■全居室2面採光
■駐車スペース2台分(車種による)■周辺施設
・小平市立学園東小学校       約330m
・小平市立小平第一中学校      約900m
・マルエツ一橋学園店        約290

近期網站遭惡意攻擊,基於安全考量
目前僅接受會員查詢物件詳細資料
類型 一戶建
物件編號 1110905
名稱 小平市学園東町1丁目戸建
價格 5,480万円
物件現況 空家
管理費等 0円
修繕積立金 0円
所在地 東京都小平市学園東町1丁目
交通 西武多摩湖線一橋学園 (步行 5 分)
格局 4DK
房號 --
總樓層 2階建 
屋齡 2018 年 (築 8 年)
面積 87.76㎡
約 26.55 坪
約 944.65 平方英呎
平米單價 日幣:62.44万円
台幣:12.33萬
港幣:3.07萬
坪單價 日幣:206.42万円
台幣:40.75萬
港幣:10.13萬
平方英呎 日幣:5.80万円
台幣:1.15萬
港幣:0.28萬
總戶數 1
方位 --
建築構造 木造
土地權利 所有権
用途地域 第1種低層住居専用地域
土地面積 111.90㎡
都市計畫 市街化区域
備註 ご覧いただきありがとうございます。
本物件は小平市学園東町一丁目の閑静な住宅街に位置しております。
最寄り駅の「一橋学園」駅までは平たんな道のりで徒歩5分でご利用いただけます。
また、近隣には商店街、飲食店、スーパー、小学校等があり住環境良好です。
まずは是非、現地をご確認いただければと思います。
ご質問・ご見学ご希望のお客様は担当までお気軽にお問い合わせ下さい。

担当:飯田 フリーコール:0120-832-131
情報公開日 2026年4月27日
目前狀態 空家
合約狀態 仲介
個人情報蒐集前告知
JP-Home.com 日本房屋網為上益國際有限公司經營管理,為了確保消費者之個人資料、隱私及消費者權益之保護,於交易過程中將使用消費者之個人資料,謹依個人資料保護法第 8 條規定,蒐集個人資料除用於本公司之會員管理、客戶管理之檢索查詢等功能外,本公司將利用個人電話號碼、LINE、Email 資料進行行銷,如有侵害到個人權益,請告知請求刪除會員資料。